 
                            Định dạng: rar
Dung lượng file: 155 KB



Tài liệu này cung cấp chi tiết kỹ thuật và thiết kế cho kiến trúc sảnh và cột trong công trình xây dựng, giúp các chuyên gia và kiến trúc sư thực hiện dự án một cách hiệu quả và chính xác.
Nội dung chính:
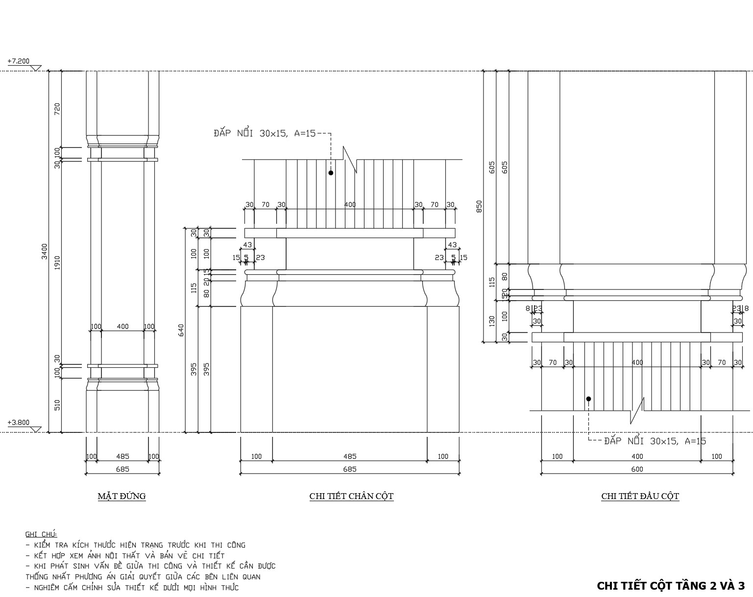
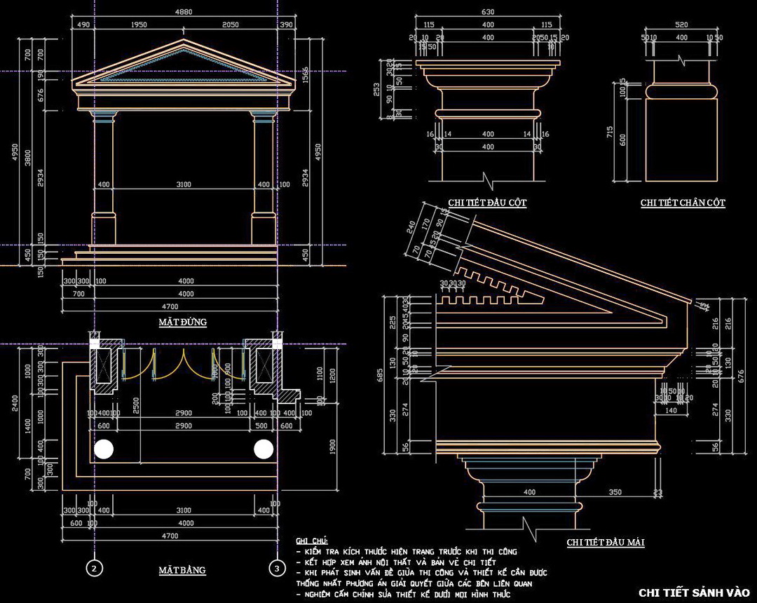
Tài liệu này minh họa thiết kế sảnh vào và cột tại tầng 2 và 3 trong một công trình kiến trúc tiêu chuẩn. Các bản vẽ kỹ thuật được phân chia thành nhiều phần khác nhau, bao gồm mặt đứng, mặt bằng, và các chi tiết chân cột, đầu cột. Kích thước chi tiết được cung cấp rõ ràng, giúp người sử dụng dễ dàng theo dõi và áp dụng vào thực tế.
- Đặc điểm nổi bật:
  • Chất lượng chuyên nghiệp: Các bản vẽ được thiết kế với độ chính xác cao, giúp đảm bảo tính thẩm mỹ và chức năng của công trình.
  • Dễ dàng sử dụng: Với các ký hiệu và chú thích rõ ràng, người dùng có thể nhanh chóng hiểu và triển khai trong thực tế.
  • Tương thích nhiều phần mềm: Các chi tiết kỹ thuật có thể được áp dụng vào nhiều phần mềm thiết kế, hỗ trợ cho quá trình làm việc số.
  • Tiết kiệm thời gian thiết kế: Các thông số chuẩn mực sẽ giúp giảm thiểu thời gian chỉnh sửa và gia công.
Ứng dụng thực tế của tài liệu này rất đa dạng, từ việc sử dụng trong các dự án xây dựng dân dụng tới các công trình kiến trúc chính phủ. Những chi tiết tỉ mỉ về các yếu tố như chiều cao cột, độ dày chân cột, và các góc chi tiết giúp đảm bảo chất lượng và độ bền của công trình.
Chi tiết kỹ thuật:
- Kích thước tổng thể của sảnh vào và cột được mô tả cụ thể, từ chiều cao toàn bộ tới các phần riêng lẻ như đầu cột và chân cột.
- Các vật liệu đề xuất cũng được đưa ra để đảm bảo sự hài hòa trong kiến trúc tổng thể.
Giá trị chuyên nghiệp:
Tài liệu này thích hợp cho các chuyên gia trong lĩnh vực kiến trúc và xây dựng, có thể áp dụng trong thiết kế, thi công, học tập và tham khảo một cách chuyên nghiệp và hiệu quả.
Kết thúc:
Hãy tải về để ứng dụng vào các dự án của bạn, hy vọng đây là tài liệu hữu ích đối với mọi người.
Bản vẽ kỹ thuật sảnh và cột cho công trình kiến trúc, chi tiết rõ ràng giúp thi công dễ dàng, tiết kiệm thời gian thiết kế, phù hợp kiến trúc sư và xây dựng.
Khám phá thêm hàng nghìn mô hình AUTOCAD miễn phí khác!
Hãy truy cập ngay Thư viện AUTOCAD của chúng tôi để tải về những tài nguyên tuyệt vời, giúp nâng cao chất lượng và hiệu quả công việc của bạn!
<<<<< >>>>>