Định dạng: rar
Dung lượng file: 450 KB
















Tài liệu này cung cấp một cái nhìn chi tiết về các thiết kế phào chỉ tân cổ điển, rất hữu ích cho các kiến trúc sư và nhà thiết kế nội thất trong việc tạo ra các công trình xa hoa và quý phái.
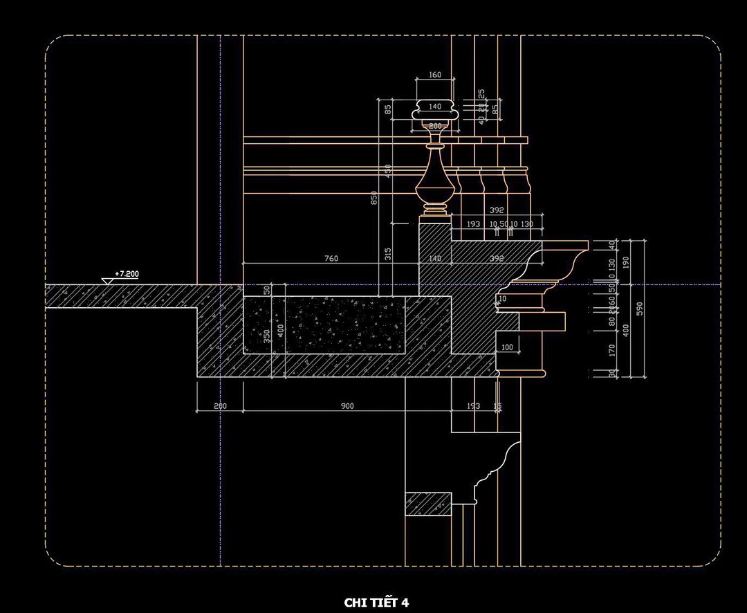
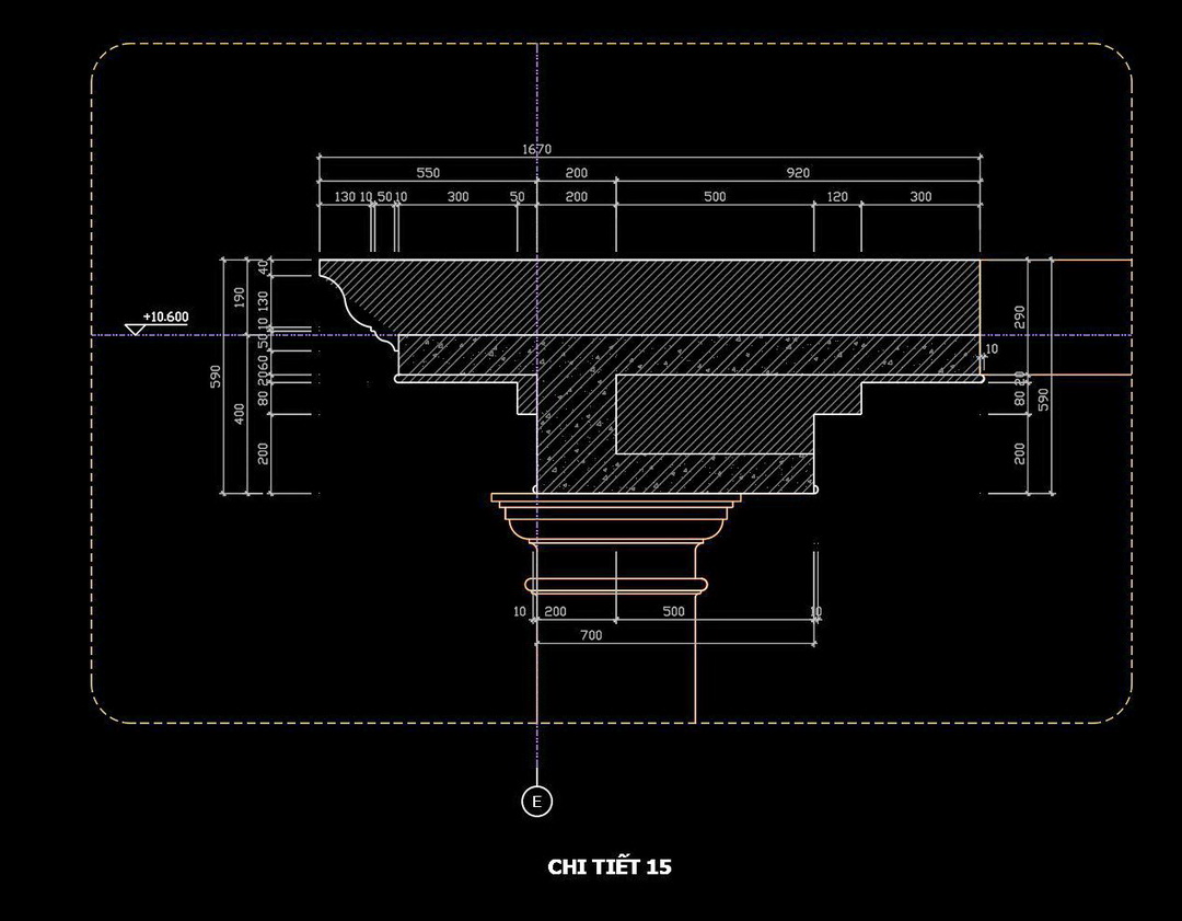
Hình ảnh trong tài liệu thể hiện các chi tiết của phào chỉ tân cổ điển qua bản vẽ kỹ thuật CAD với các số đo chính xác. Các đường nét và kích thước được trình bày rõ ràng, giúp dễ dàng hiểu và áp dụng vào thiết kế thực tế.
Đặc điểm nổi bật:
• Chất lượng chuyên nghiệp: Hình ảnh và bản vẽ có độ phân giải cao, đường nét rõ ràng và chính xác.
• Dễ dàng sử dụng: Các hình ảnh được cấu trúc và hiển thị chi tiết, thuận tiện cho việc áp dụng vào các dự án thực tế.
• Tương thích nhiều phần mềm: File có thể được mở và chỉnh sửa bằng nhiều phần mềm thiết kế nổi tiếng như AutoCAD.
• Tiết kiệm thời gian thiết kế: Không cần phải tự tạo bản vẽ mới, có thể sử dụng ngay lập tức.
Các phào chỉ này có thể được ứng dụng rộng rãi trong các công trình xây dựng đòi hỏi tính thẩm mỹ cao như biệt thự, khách sạn và nhà hàng. Chúng không chỉ mang lại vẻ đẹp tinh tế mà còn tạo điểm nhấn cho không gian nội thất.
Chi tiết kỹ thuật bao gồm kích thước chính xác của từng phần, giúp dễ dàng trong việc đặt vật liệu và thi công. Tài liệu cung cấp thông tin về cả chiều cao, chiều rộng và độ dày, đảm bảo việc kiến tạo và lắp đặt diễn ra suôn sẻ.
Giá trị chuyên nghiệp:
- Đối tượng sử dụng: Các chuyên gia trong lĩnh vực kiến trúc và xây dựng
- Ứng dụng: Thiết kế, thi công, học tập, tham khảo
Hãy tải về để ứng dụng vào các dự án của bạn, hy vọng đây là tài liệu hữu ích đối với mọi người.
Khám phá thêm hàng nghìn mô hình AUTOCAD miễn phí khác!
Hãy truy cập ngay Thư viện AUTOCAD của chúng tôi để tải về những tài nguyên tuyệt vời, giúp nâng cao chất lượng và hiệu quả công việc của bạn!
<<<<< >>>>>