 
                            Định dạng: rar
Dung lượng file: 137 KB



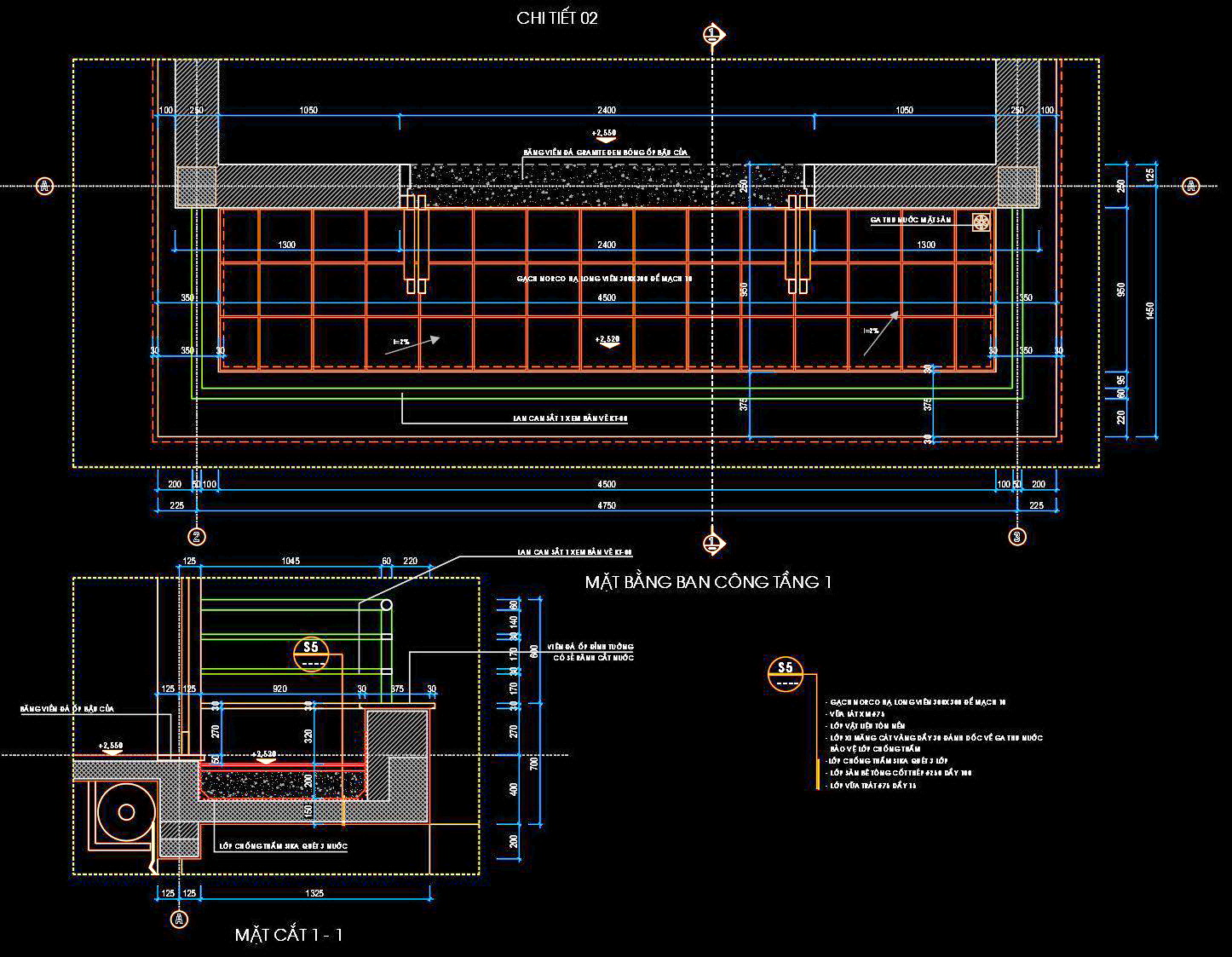
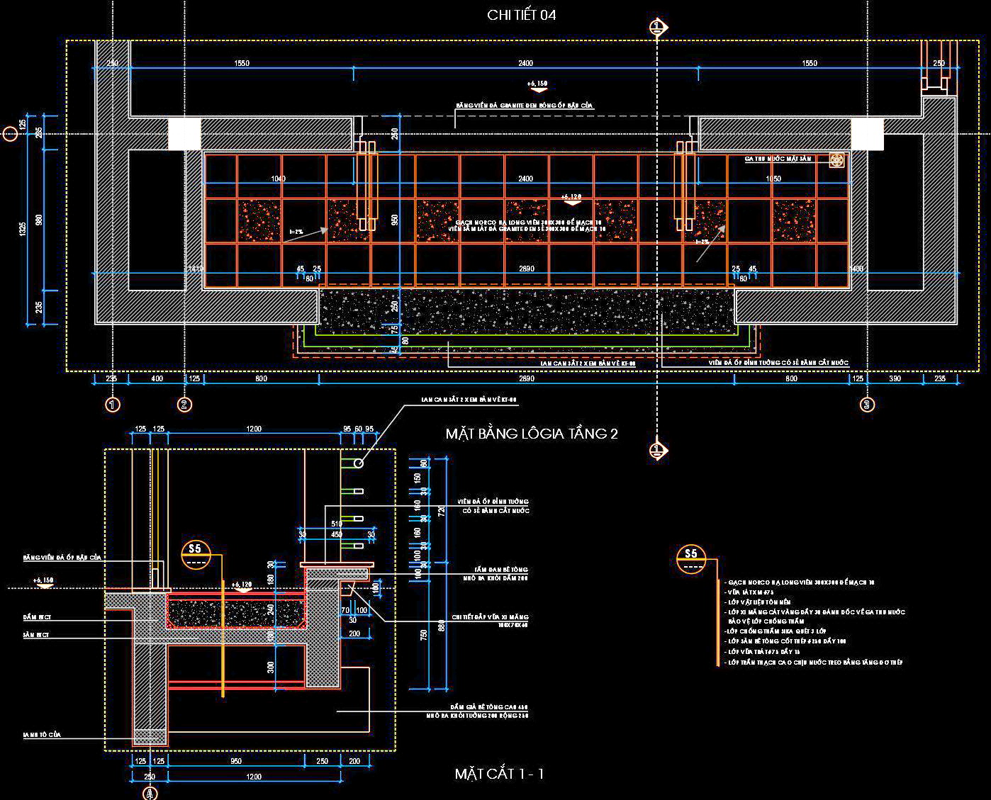
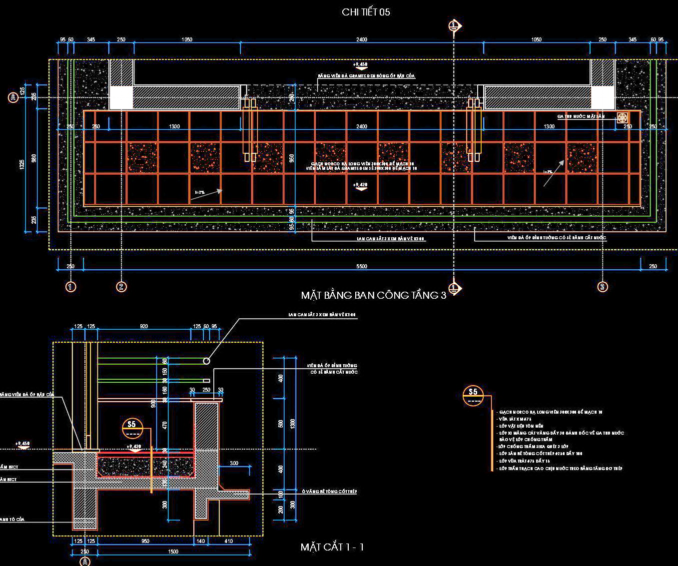
Tài liệu này cung cấp bản vẽ chi tiết ban công dành cho các dự án kiến trúc và xây dựng. Được thiết kế một cách chuyên nghiệp, các hình ảnh trong tài liệu mang lại cái nhìn rõ ràng về cấu trúc và phân bố không gian ban công.
Bản vẽ chi tiết bao gồm nhiều yếu tố kỹ thuật quan trọng khác nhau. Các mặt bằng và mặt cắt được thể hiện rõ ràng với kích thước cụ thể, giúp người xem dễ dàng hình dung về cách thức xây dựng.
- Đặc điểm nổi bật:
• Chất lượng chuyên nghiệp: Bản vẽ được thiết kế với độ chính xác cao, phục vụ tốt cho các yêu cầu khắt khe trong ngành.
• Dễ dàng sử dụng: Các kí hiệu và chú thích rõ ràng giúp người dùng dễ dàng trong việc theo dõi và sử dụng tài liệu.
• Tương thích nhiều phần mềm: Định dạng của bản vẽ cho phép mở trên nhiều ứng dụng khác nhau, tăng tính linh hoạt.
• Tiết kiệm thời gian thiết kế: Giảm thời gian và công sức cần thiết trong quá trình tạo một bản vẽ từ đầu.
Bản vẽ này cực kỳ hữu ích trong việc tạo nên một không gian ban công an toàn và thẩm mỹ. Không chỉ giúp ích trong việc thiết kế và thi công, nó còn là tài liệu tham khảo quý giá cho sinh viên và các chuyên gia muốn tìm hiểu sâu hơn về kiến trúc.
Chi tiết kích thước, vật liệu sử dụng đều được thể hiện rõ trên bản vẽ, đảm bảo tính khả thi của các dự án thực tế. Ví dụ, lớp sơn và vật liệu chống thấm được xác định rõ ràng, giúp bảo vệ ban công khỏi các tác động ngoại cảnh.
Giá trị chuyên nghiệp: Tài liệu hướng tới các chuyên gia trong lĩnh vực kiến trúc và xây dựng, với ứng dụng rộng rãi từ thiết kế, thi công đến học tập và tham khảo.
Hãy tải về để ứng dụng vào các dự án của bạn, hy vọng đây là tài liệu hữu ích đối với mọi người.
Khám phá thêm hàng nghìn mô hình AUTOCAD miễn phí khác!
Hãy truy cập ngay Thư viện AUTOCAD của chúng tôi để tải về những tài nguyên tuyệt vời, giúp nâng cao chất lượng và hiệu quả công việc của bạn!
<<<<< >>>>>