Định dạng: rar
Dung lượng file: 217 KB


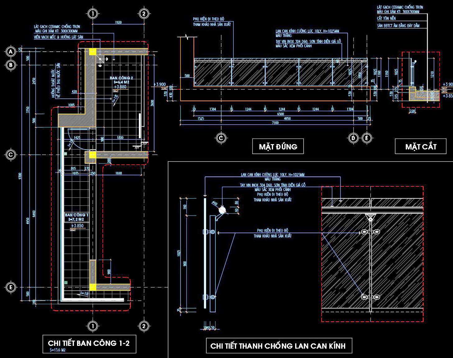
Tài liệu này cung cấp một cái nhìn chi tiết về thiết kế ban công với lan can kính và sắt, hoàn toàn tương thích với nhiều yêu cầu kiến trúc hiện đại.
Hình ảnh trong tài liệu thể hiện rõ ràng các chi tiết kỹ thuật cần thiết để xây dựng một hệ thống ban công chắc chắn và thẩm mỹ. Bản vẽ được trình bày với các mặt cắt, mặt đứng và chi tiết lắp ráp, cho phép người dùng dễ dàng xem xét từng phần và các kết nối giữa các thành phần.
Đặc điểm nổi bật:
- Chất lượng chuyên nghiệp: Bản vẽ được thiết kế với độ chính xác cao, đảm bảo phù hợp với tiêu chuẩn xây dựng hiện hành.
- Dễ dàng sử dụng: Các chi tiết được ghi chú rõ ràng, đơn giản hóa quá trình thi công và lắp đặt.
- Tương thích nhiều phần mềm: Bản vẽ có thể được sử dụng với nhiều phần mềm thiết kế kỹ thuật số, thuận tiện cho việc điều chỉnh và tích hợp vào các dự án khác.
- Tiết kiệm thời gian thiết kế: Mô hình có sẵn các phép đo và chi tiết phụ kiện, hỗ trợ nhanh chóng cho các kỹ sư và kiến trúc sư.
Hệ thống ban công sử dụng lan can kính cường lực 10 ly, kết hợp với khung sắt, mang lại thẩm mỹ hiện đại và an toàn cho người sử dụng. Phụ kiện cao cấp từ inox và thép không gỉ đảm bảo độ bền cao trong môi trường ngoài trời. Chiều cao của lan can được thiết kế theo tiêu chuẩn an toàn, phù hợp với nhiều dạng công trình khác nhau.
Các bản vẽ đi kèm chi tiết về kích thước từng phần của ban công, định vị các điểm gắn kết và phương thức lắp ráp. Với sự minh bạch trong thiết kế, quá trình lắp đặt sẽ diễn ra suôn sẻ hơn và tránh được các sai sót không mong muốn.
Giá trị chuyên nghiệp: Tài liệu này đặc biệt hữu ích cho các chuyên gia trong lĩnh vực kiến trúc và xây dựng, giúp họ dễ dàng thiết kế, thi công và học tập.
Hãy tải về để ứng dụng vào các dự án của bạn, hy vọng đây là tài liệu hữu ích đối với mọi người.
Khám phá thêm hàng nghìn mô hình AUTOCAD miễn phí khác!
Hãy truy cập ngay Thư viện AUTOCAD của chúng tôi để tải về những tài nguyên tuyệt vời, giúp nâng cao chất lượng và hiệu quả công việc của bạn!
<<<<< >>>>>