Ctrl+D

Đánh dấu để lưu lại

Tất cả

    SEARCH ITEMS

  • Thư viện Autocad
  • Hồ sơ thiết kế
  • Thư viện Sketchup
  • Phối cảnh kiến trúc Sketchup
  • Phối cảnh nội thất Sketchup
  • Thư viện 3ds max
  • Phối cảnh 3D nội thất
  • Phối cảnh 3D ngoại thất
  • Đồ án kiến trúc
  • Thư viện Revit
  • Thư viện photoshop
  • Thư viện Map
  • Thư viện Vật liệu - HDRI
  • Thư viện Lumion
  • Giáo trình học tập
  • Sách - Tạp chí kiến trúc
  • Phần mềm và Plugins

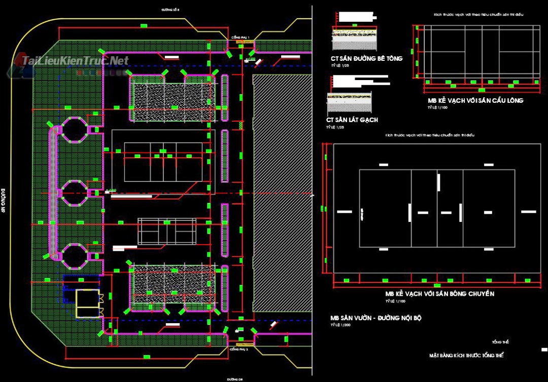
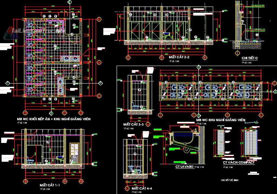
Bản vẽ autocad hồ sơ thiết kế trung tâm bồi dưỡng học viên

Trang chủ  >   Hồ sơ thiết kế >   Trường học, ủy ban

  • Bản vẽ autocad hồ sơ thiết kế trung tâm bồi dưỡng học viên
  • Có thể quan tâm



















     Bản vẽ autocad hồ sơ thiết kế trung tâm bồi dưỡng học viên

    Bản vẽ được chia sẻ bởi thành viên Hà Quốc Việt

    Xem và tải về tham khảo




    Tài liệu liên quan

    Quảng cáo