Ctrl+D

Đánh dấu để lưu lại

Tất cả

    SEARCH ITEMS

  • Thư viện Autocad
  • Thư viện Sketchup
  • Phối cảnh kiến trúc Sketchup
  • Phối cảnh nội thất Sketchup
  • Hồ sơ thiết kế
  • Thư viện 3ds max
  • Thư viện Lumion
  • Thư viện Revit
  • Thư viện Map
  • Thư viện Vật liệu - HDRI
  • Giáo trình học tập
  • Sách - Tạp chí kiến trúc
  • Đồ án kiến trúc
  • Phần mềm và Plugins
  • Thư viện photoshop
  • Phối cảnh 3D nội thất
  • Phối cảnh 3D ngoại thất

Hồ sơ thiết kế biệt thự 3 tầng diện tích 10.5x13m full kiến trúc, kết cấu, điện nước, dự toán và phối cảnh 187

Trang chủ  >   Hồ sơ thiết kế >   Hồ sơ thiết kế biệt thự

  • Hồ sơ thiết kế biệt thự 3 tầng diện tích 10.5x13m full kiến trúc, kết cấu, điện nước, dự toán và phối cảnh 187
  • Có thể quan tâm









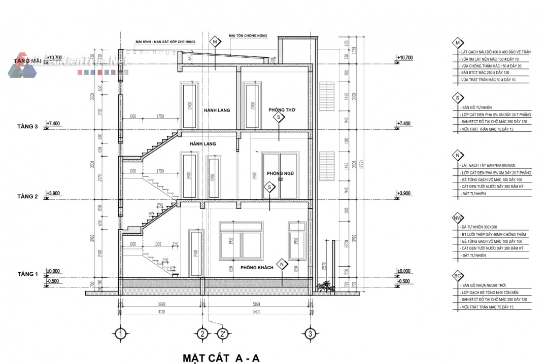
     Hồ sơ thiết kế biệt thự 3 tầng diện tích 10.5x13m full kiến trúc, kết cấu, điện nước, dự toán và phối cảnh 187

     Trong bộ hồ sơ thiết kế biệt thự này các bạn có thể thấy rõ các hạng mục như sau:

    + Hạng mục thiết kế kiến trúc

    + Hạng mục thiết kế kết cấu

    + Hạng mục điện nước

    Các bạn cùng xem và tải về tham khảo sử dụng nhé



    1_Phần Kiến trúc




















    2_Phần Kết cấu

    3_Phần điện nước


    Tài liệu liên quan

    Quảng cáo