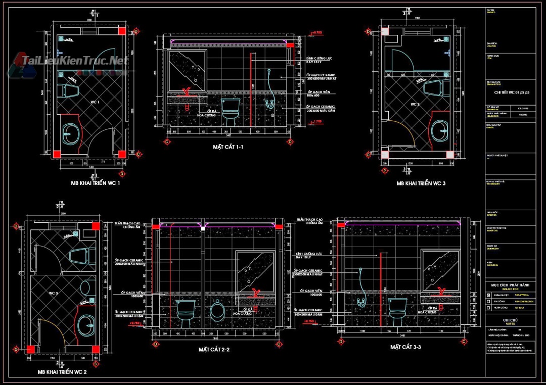
Hiên nay nhu cầu thiết kế biệt thự theo phong cách tân cổ điển và cổ điển đang tăng lên do nhu cầu của các chủ nhân của các gia đình luôn mong có được một công trình khang trang mang đến sự đẳng cấp và tinh tế. Biệt thự cổ điển mang trong mình những sự cuốn hút, tinh tế và sang trọng nhờ các chi tiết hoa văn kiến trúc vô cùng tỉ mỉ mang đến cho mỗi ngôi nhà một nét nghệ thuật, một nét đẹp kiến trúc vô cùng hấp dẫn.


























