Trong lĩnh vực thiết kế công trình công cộng, nhà thi đấu đa năng luôn là một thử thách thú vị nhưng cũng đầy khó khăn đối với các kiến trúc sư. Yêu cầu về không gian vượt nhịp lớn, hệ thống thông gió chiếu sáng tự nhiên và sơ đồ thoát người phải được tính toán tỉ mỉ.
Hôm nay, chúng tôi xin giới thiệu bộ hồ sơ thiết kế nhà thi đấu đa năng kích thước $34.8 \times 17.6\text{m}$ đầy đủ các hạng mục, là tài liệu tham khảo "vàng" cho các dự án tương tự.
Loại hình: Công trình thể thao / Nhà thi đấu đa năng.
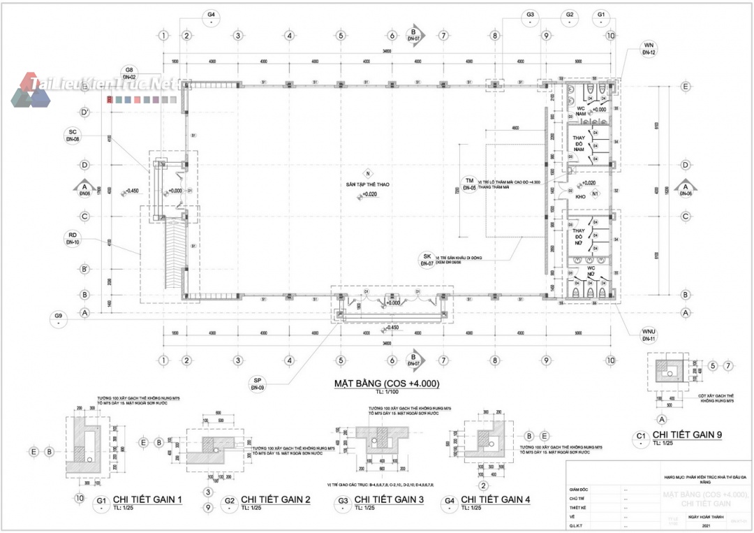
Kích thước xây dựng: $34.8 \text{m}$ (chiều dài) $\times 17.6 \text{m}$ (chiều rộng).
Diện tích sàn: Khoảng $612\text{m}^2$.
Cấu trúc: Nhà nhịp lớn, hệ mái vòm hiện đại.
Phạm vi hồ sơ: Full bản vẽ thi công (Kiến trúc, Kết cấu, Điện, Nước).
Dựa trên các bản vẽ chi tiết, công trình được thiết kế tối ưu cho các hoạt động thể chất và sự kiện văn hóa:
Mặt bằng được phân chia khoa học bao gồm:
Sân tập thể thao trung tâm: Không gian rộng, không vướng cột, đảm bảo tiêu chuẩn cho các môn bóng chuyền, cầu lông, bóng rổ.
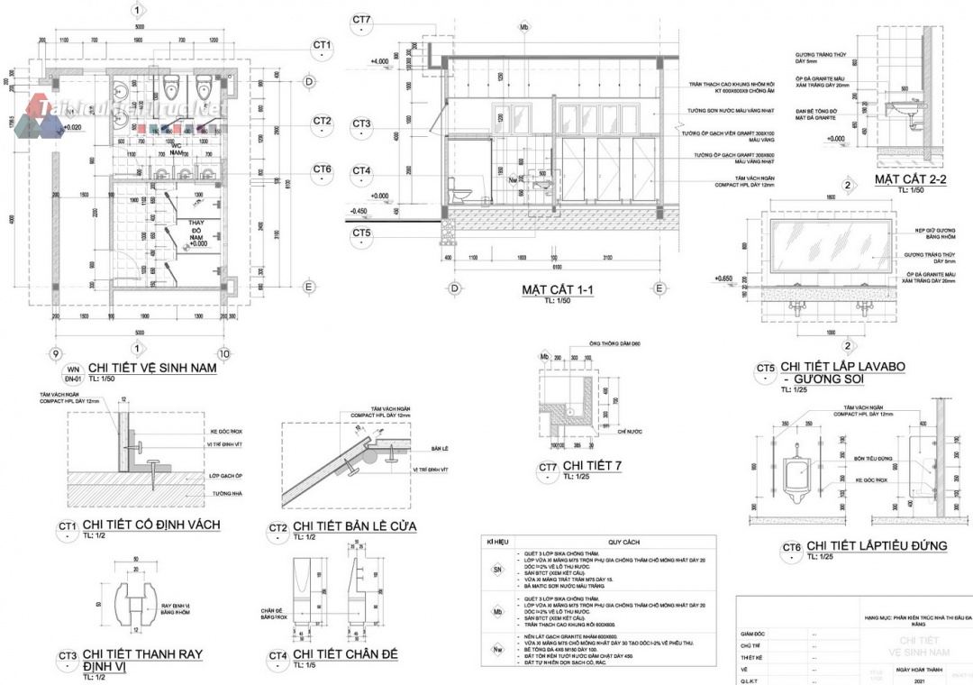
Khu phụ trợ: Bố trí hợp lý khu vực thay đồ (nam/nữ), nhà vệ sinh (WC) và kho chứa dụng cụ.
Sân khấu di động: Linh hoạt cho các buổi lễ hoặc chương trình văn nghệ.
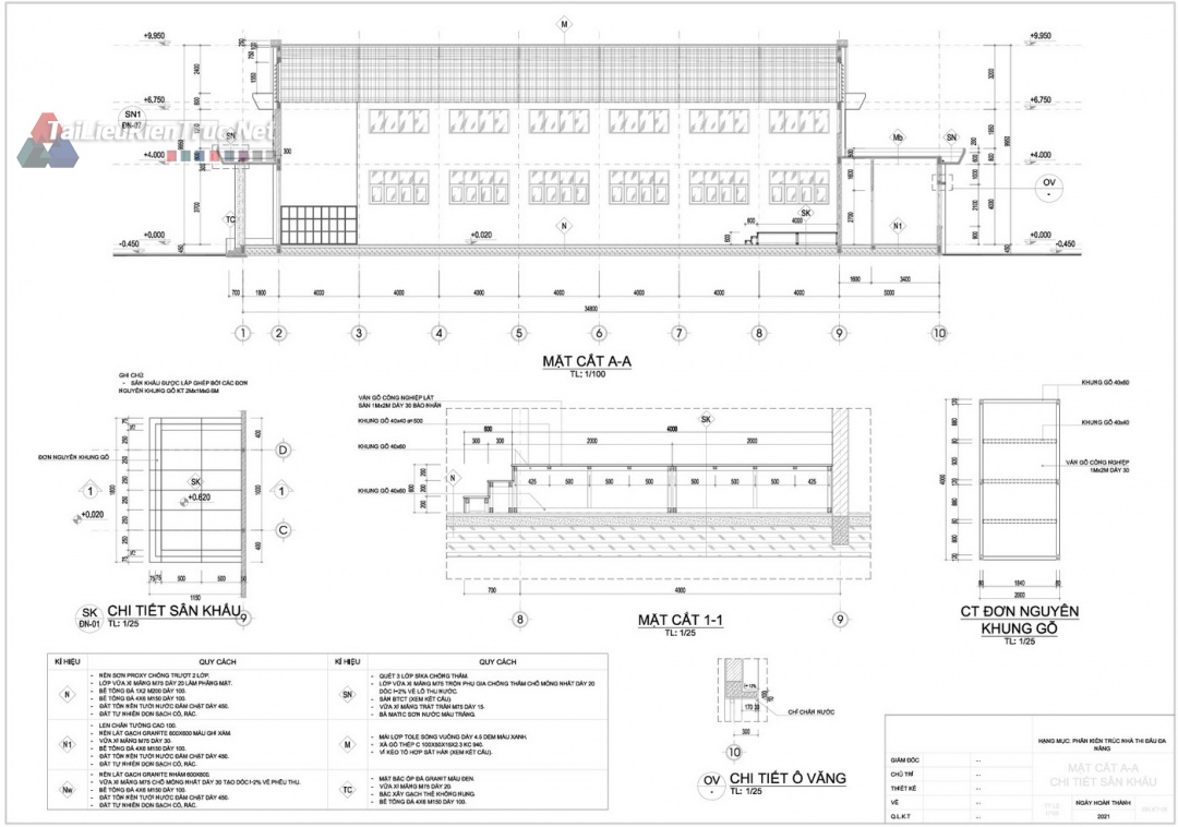
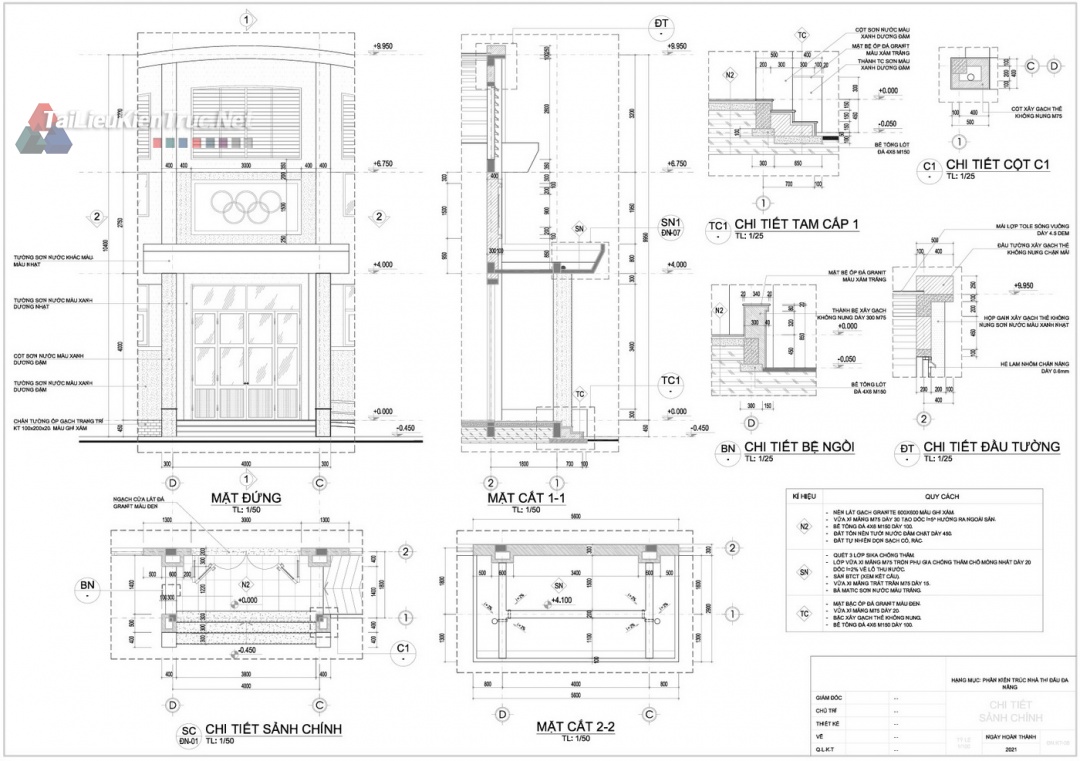
Mặt đứng trục 1-10 và A-E thể hiện phong cách hiện đại với:
Hệ thống cửa sổ lấy sáng tự nhiên cao giúp tiết kiệm điện năng.
Mái vòm (Arch roof) không chỉ tạo thẩm mỹ mà còn hỗ trợ thoát nước mưa và chịu lực tốt.
Các chi tiết trang trí đặc thù như biểu tượng Olympic, tạo điểm nhấn chuyên biệt cho công trình thể thao.
Đây là phần quan trọng nhất đối với các kỹ sư khi tham khảo bộ hồ sơ này:
Kết cấu mái: Sử dụng hệ vì kèo thép tổ hợp nhịp lớn, lợp tôn chống nóng, đảm bảo độ bền và thời gian thi công nhanh.
Hệ thống Ram dốc: Thiết kế chi tiết ram dốc dành cho người khuyết tật, tuân thủ nghiêm ngặt tiêu chuẩn thiết kế công trình công cộng.
Chi tiết cấu tạo: Hồ sơ cung cấp đầy đủ chi tiết sảnh chính, sảnh phụ, chi tiết thang lên mái, hệ thống máng thu nước (sê-nô) và thoát nước mái.
Việc tham khảo một bộ hồ sơ Full bản vẽ thi công đã qua phê duyệt sẽ giúp bạn:
Tiết kiệm thời gian: Không cần bắt đầu từ con số 0, có sẵn mẫu layout và các chi tiết cấu tạo chuẩn.
Độ tin cậy cao: Các thông số kỹ thuật, ghi chú vật liệu (bột trét, sơn nước, gạch ốp lát...) được trình bày chuyên nghiệp, đúng quy chuẩn.
Tối ưu hóa ý tưởng: Tham khảo cách xử lý không gian vượt nhịp $17.6\text{m}$ và hệ thống thông gió tự nhiên.
Hồ sơ bao gồm hàng trăm bản vẽ CAD chất lượng cao:
Phần Kiến trúc: Các mặt bằng, mặt đứng, mặt cắt, chi tiết thang, vệ sinh, chi tiết cửa, ram dốc.
Phần Kết cấu: Móng, cột, dầm, sàn, chi tiết vì kèo mái thép.
Phần Điện - Nước: Sơ đồ nguyên lý, mặt bằng cấp thoát nước, bố trí thiết bị chiếu sáng, chống sét.
Lưu ý: Đây là bộ hồ sơ thiết kế chất lượng cao có thu phí. Mức phí này hoàn toàn xứng đáng so với khối lượng chất xám và thời gian bạn tiết kiệm được khi triển khai dự án thực tế.














