Hồ sơ thiết kế thi công biệt thự tân cổ điển 2 tầng diện tích 10x15m - 0122 full kiến trúc, kết cấu và điện nước
Hồ sơ thiết kế này rất đầy đủ và chi tiết, các bạn có thể download về tham khảo sử dụng
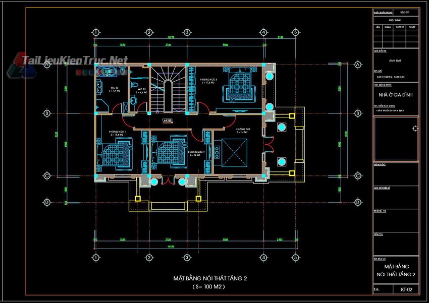
1_ Toàn bộ hồ sơ này với đầy đủ các chi tiết của Hạng mục kiến trúc bao gồm:
+ Mặt bằng bố trí nội thất các tầng
+ Mặt bằng xây tường các tầng
+ Mặt đứng công trình
+ Mặt cắt công trình
+ Chi tiết thang
+ Chi tiết vệ sinh
+ Chi tiết mặt đứng công trình
+ Chi tiết ban công lan can
+ Chi tiết cửa đi và cửa sổ
2_ Hạng mục thiết kế kết cấu
3_ Hạng mục thiết kế điện nước
Hồ sơ thiết kế này được chia sẻ bởi thành viên : Phạm thành
Ngoài ra các bạn có thể tham khảo thêm các mẫu biệt thự tân cổ điển
TẠI ĐÂY















