 
                            Định dạng: rar
Dung lượng file: 86 KB


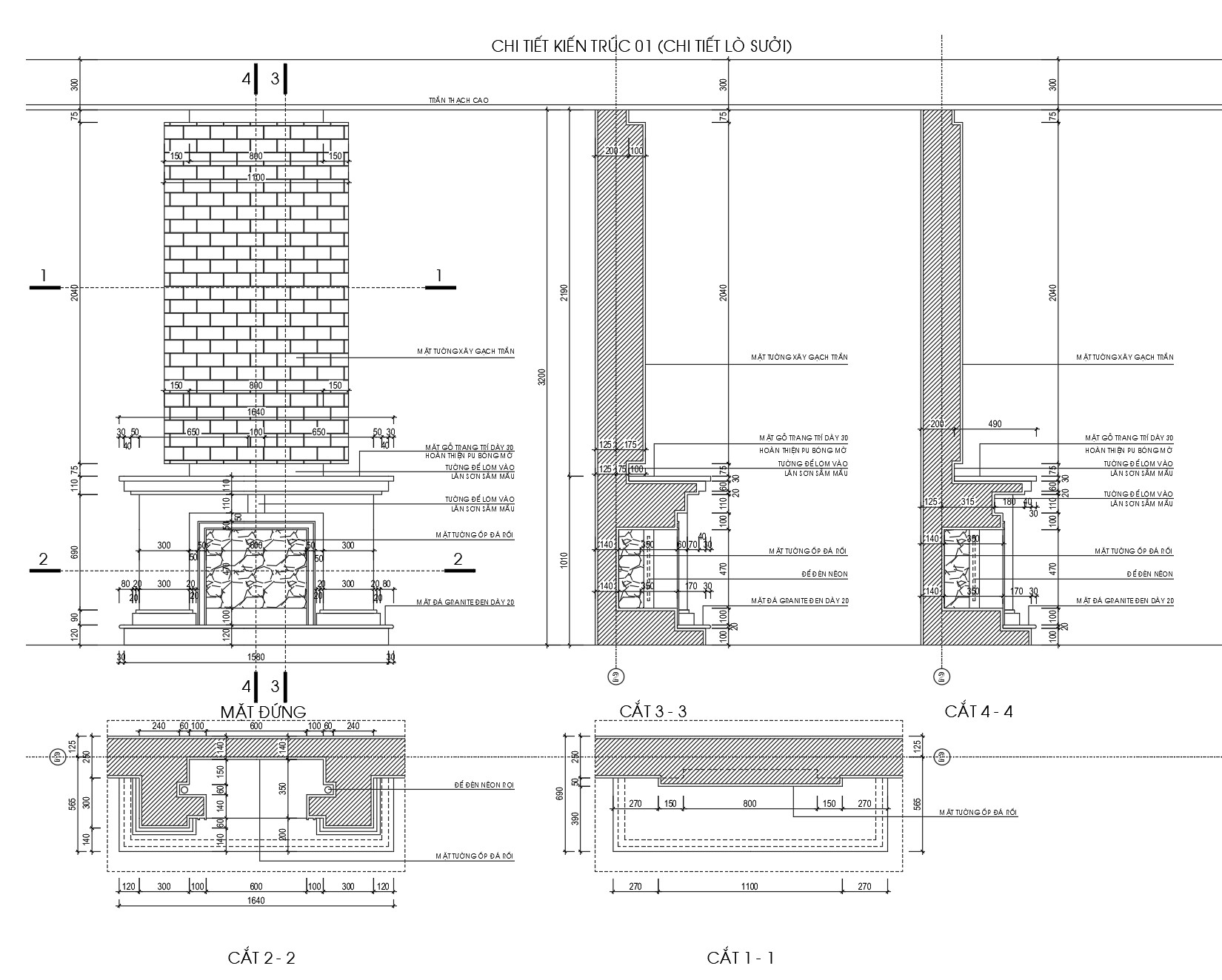
TIÊU ĐỀ THAM KHẢO: Bản Vẽ Chi Tiết Lò Sưởi
Tài liệu này cung cấp cái nhìn chi tiết về bản vẽ kiến trúc của lò sưởi. Đây là một bộ bản vẽ kỹ thuật được thiết kế để hỗ trợ các chuyên gia trong lĩnh vực xây dựng và kiến trúc, giúp nắm bắt chi tiết cấu trúc của một lò sưởi.
Nội dung chính:
Các hình ảnh trong tài liệu minh họa chi tiết các mặt cắt, kích thước và vật liệu sử dụng cho cấu trúc lò sưởi. Mỗi phần của bản vẽ đều được chú thích rõ ràng, từ mặt đứng, cắt dọc đến mặt cắt ngang, giúp người xem dễ dàng theo dõi và áp dụng thực tế.
Đặc điểm nổi bật:
  • Chất lượng chuyên nghiệp: Bản vẽ được thực hiện với độ chính xác cao, thể hiện các chi tiết cần thiết để thi công.
  • Dễ dàng sử dụng: Các chú thích và chỉ dẫn đều có trên bản vẽ, hỗ trợ tối đa trong quá trình thiết kế và xây dựng.
  • Tương thích nhiều phần mềm: Định dạng tiêu chuẩn giúp tương thích với nhiều phần mềm thiết kế kiến trúc phổ biến.
  • Tiết kiệm thời gian thiết kế: Người dùng có thể trực tiếp áp dụng các thông số này vào dự án của mình.
Ứng dụng thực tế của bộ bản vẽ này là rất rõ ràng. Bằng việc cung cấp một cái nhìn toàn diện và chi tiết về cấu trúc của lò sưởi, các kiến trúc sư và kỹ sư có thể tiết kiệm thời gian đáng kể trong giai đoạn thiết kế và thi công. Đặc biệt, với các chú thích tỷ mỷ về kích thước và vật liệu, người sử dụng có thể dễ dàng điều chỉnh bản vẽ cho phù hợp với nhu cầu cụ thể.
Giá trị chuyên nghiệp:
Bản vẽ này thích hợp cho các chuyên gia trong lĩnh vực kiến trúc và xây dựng, đồng thời là tài liệu tham khảo hữu ích cho việc thiết kế, thi công, và học tập.
Hãy tải về để ứng dụng vào các dự án của bạn, hy vọng đây là tài liệu hữu ích đối với mọi người.
Khám phá thêm hàng nghìn mô hình AUTOCAD miễn phí khác!
Hãy truy cập ngay Thư viện AUTOCAD của chúng tôi để tải về những tài nguyên tuyệt vời, giúp nâng cao chất lượng và hiệu quả công việc của bạn!
<<<<< >>>>>