Với mục tiêu cung cấp nguồn tài liệu học tập và tham khảo chất lượng cao, chúng tôi giới thiệu Hồ sơ thiết kế biệt thự 3 tầng phong cách hiện đại được minh họa qua các bản vẽ kỹ thuật chi tiết và phối cảnh thực tế. Đây là một tài liệu quý giá, đặc biệt phù hợp với kiến trúc sư (KTS) muốn nghiên cứu giải pháp thiết kế thực tế và sinh viên kiến trúc cần một case study hoàn chỉnh, chuyên nghiệp.
Xem các bản vẽ đầy đủ trong file pdf dưới đây
Công trình là một mẫu biệt thự phố 3 tầng (Tầng 1, Tầng 2, Tầng Tum/Mái) với kiến trúc tối giản, hiện đại, sử dụng vật liệu và màu sắc tinh tế, tạo nên sự sang trọng và hài hòa với cảnh quan đô thị.
Phong cách: Hiện đại, tối giản, có sự kết hợp hài hòa giữa mảng xanh và không gian sống.
Quy mô: 3 tầng (1 trệt, 2 lầu, 1 tum/mái).
Diện tích khu đất & xây dựng: Thể hiện chi tiết trên các bản vẽ mặt bằng trục (khu đất có kích thước khoảng ).
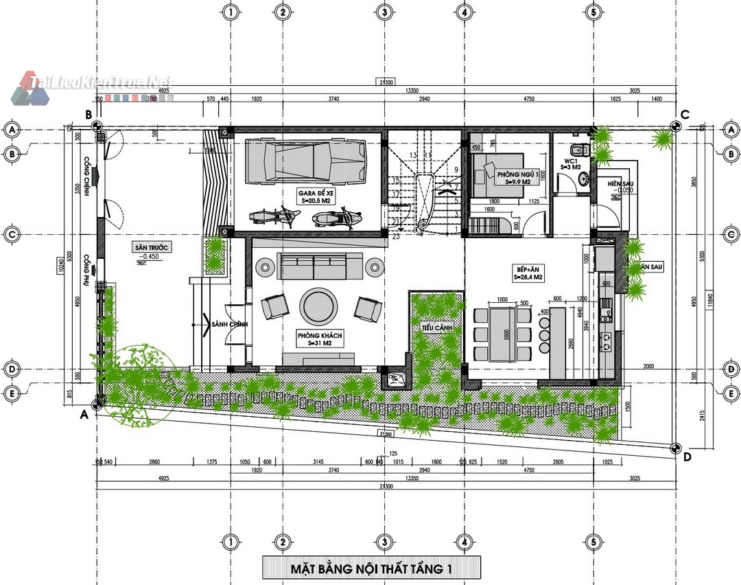
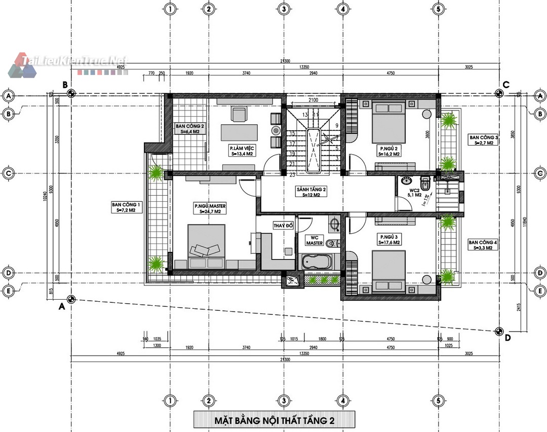
Hồ sơ cung cấp đầy đủ các bản vẽ mặt bằng nội thất chi tiết, thể hiện rõ giải pháp bố trí không gian tối ưu.
Chức năng: Tập trung vào không gian sinh hoạt chung, tiếp khách và các tiện ích cơ bản.
Chi tiết: Bao gồm Phòng Khách () rộng rãi, Bếp + Ăn () liên thông, Gara ô tô (), cùng với các khu vực phụ trợ như Sân trước, Sân sau, Sảnh chính. Bố trí công năng mạch lạc, dễ dàng tiếp cận và sử dụng.
Chức năng: Khu vực ngủ nghỉ chính, đảm bảo sự riêng tư và tiện nghi.
Chi tiết: Bao gồm 3 phòng ngủ, trong đó có Phòng Ngủ Master () lớn với WC khép kín, 2 Phòng Ngủ thường ( và (), cùng Phòng Làm Việc () và các ban công rộng. Giải pháp chiếu sáng và thông gió tự nhiên được ưu tiên tối đa.
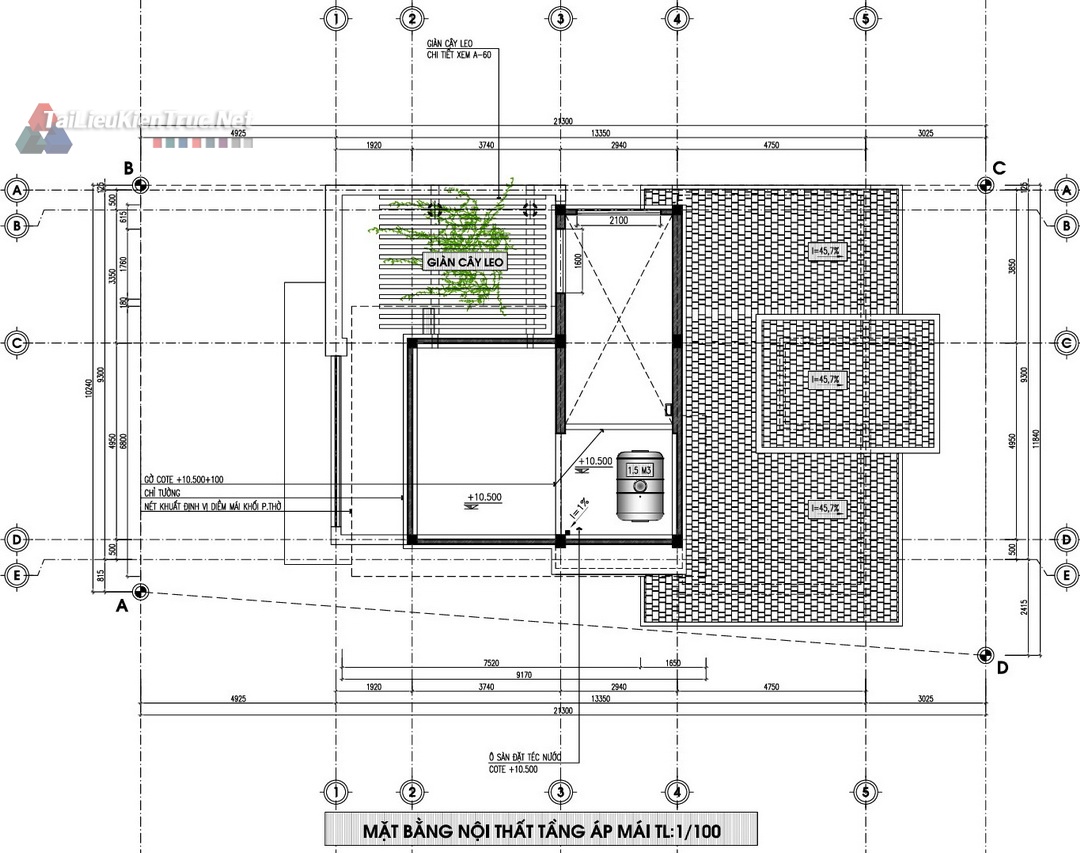
Chức năng: Tận dụng tối đa không gian trên cao cho thư giãn và phục vụ kỹ thuật.
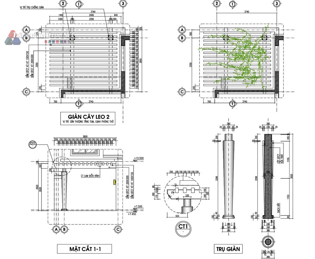
Chi tiết: Sân Chơi (), Phòng Thờ () yên tĩnh, Phòng Giặt (), và Sân Thượng/Mái rộng lớn bao gồm khu vực Giàn Cây Leo tạo cảnh quan xanh mát, bể nước sinh hoạt và hệ thống kỹ thuật.
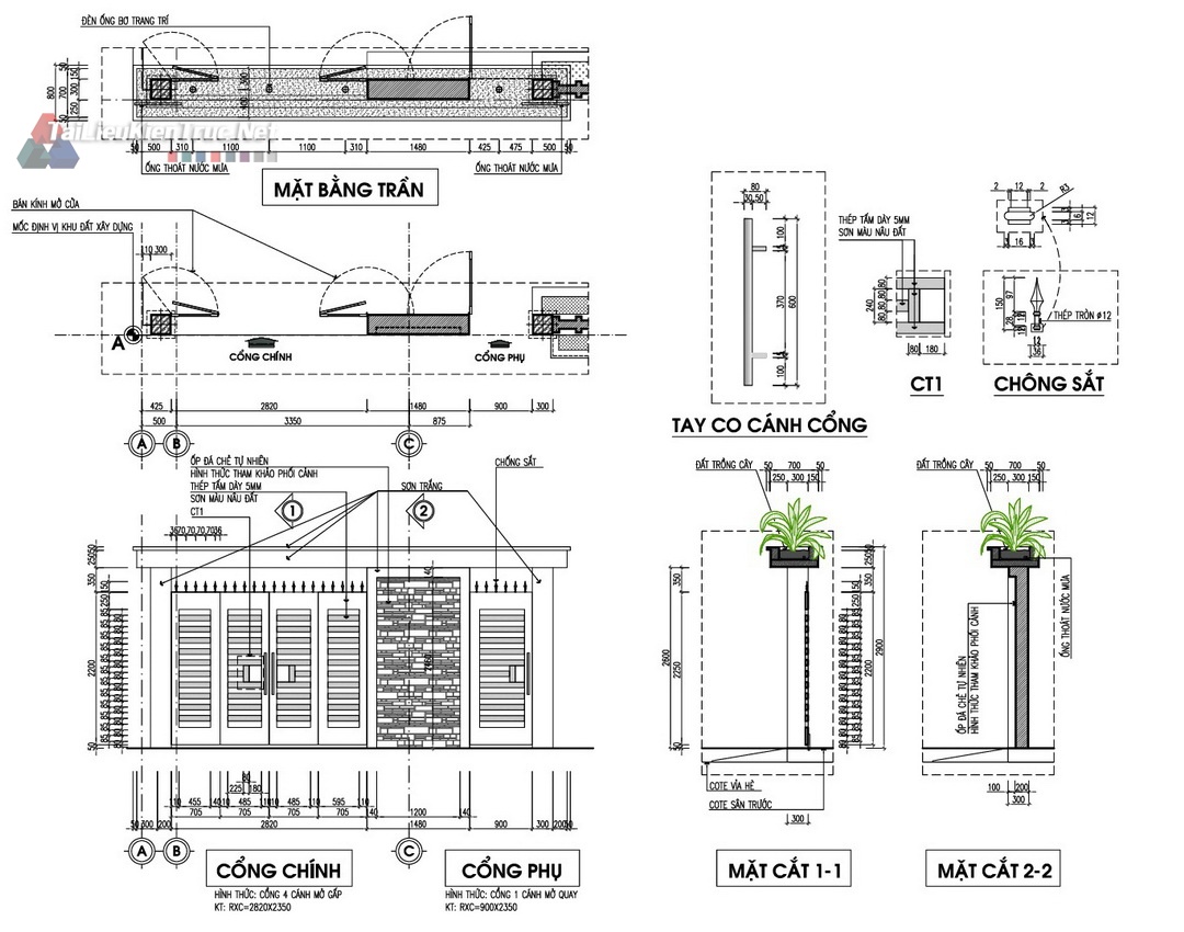
Bộ hồ sơ được trình bày theo tiêu chuẩn kỹ thuật xây dựng, cung cấp cái nhìn toàn diện về cấu tạo công trình.
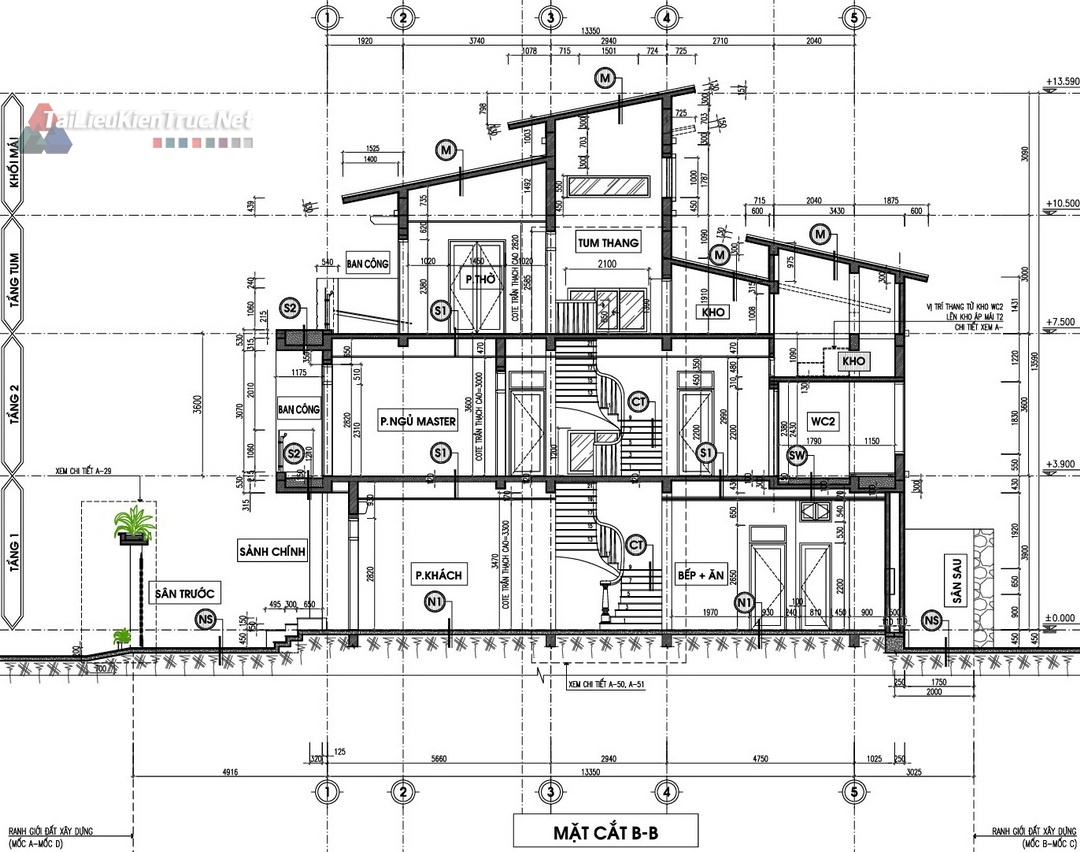
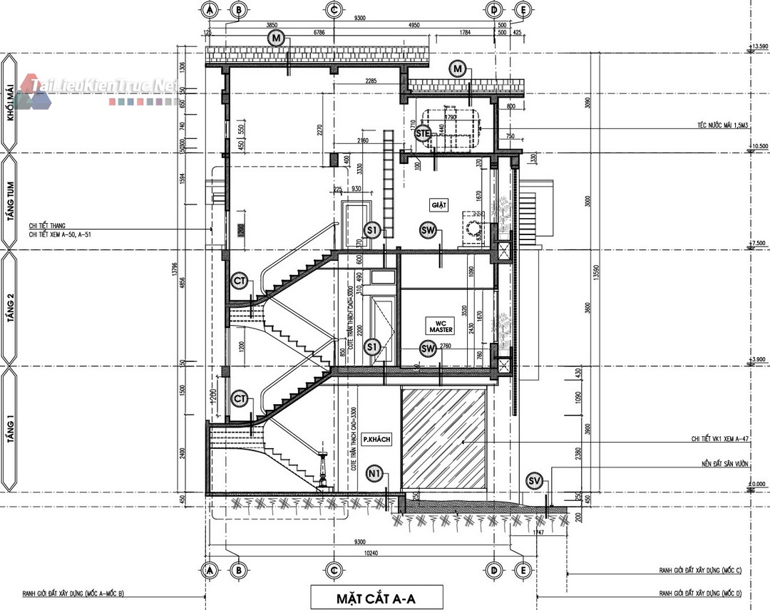
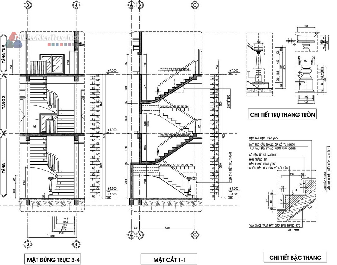
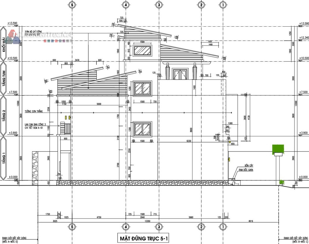
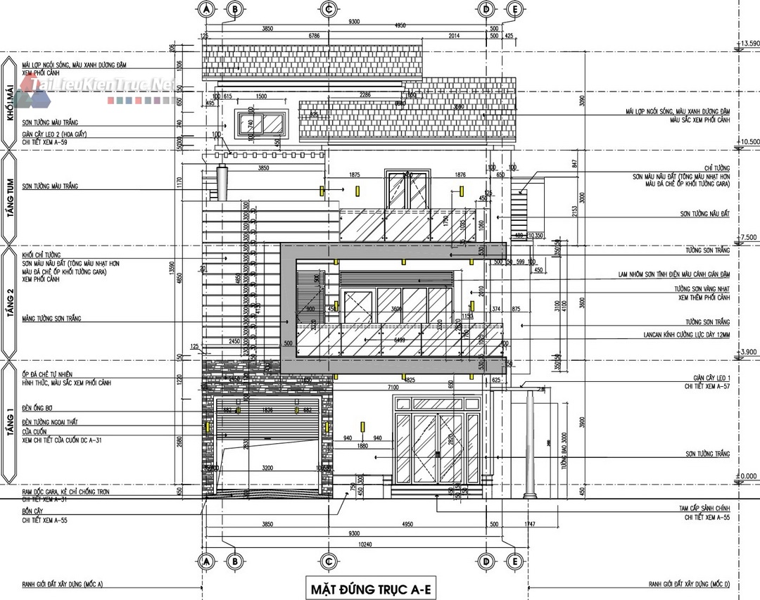
Mặt Cắt A-A & B-B: Thể hiện rõ chiều cao thông thủy các tầng, kết cấu thang (chi tiết cầu thang), vị trí cửa, và mối liên kết giữa các không gian. Cung cấp thông tin cao độ chi tiết (ví dụ: Tầng 1 ±0.000, Tầng 2 +3.900, Tầng Tum +7.500, Đỉnh mái +13.590).
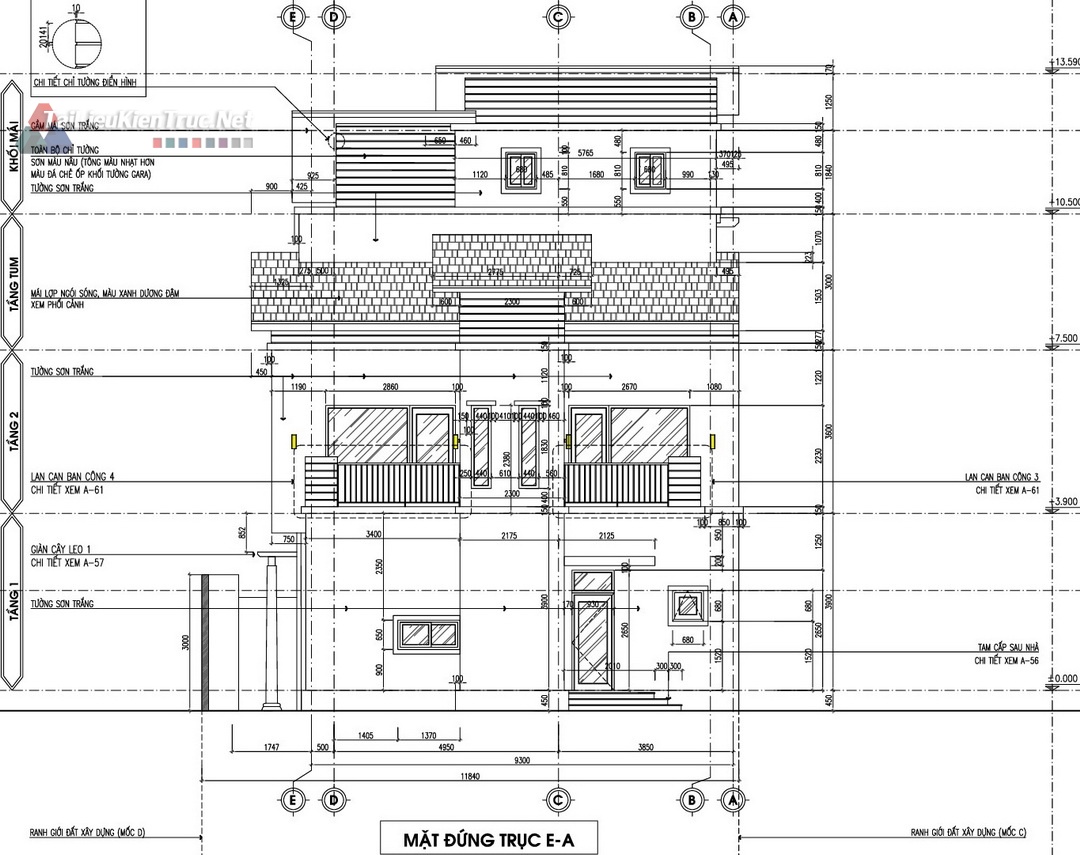
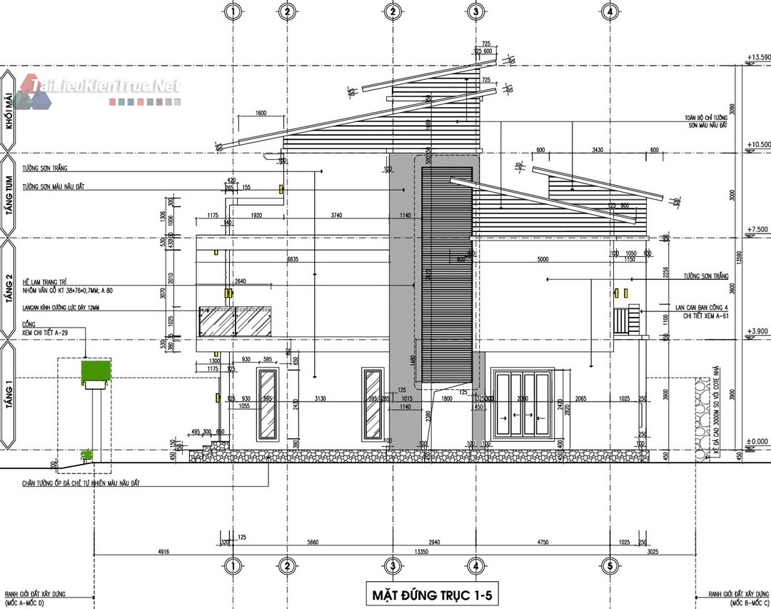
Mặt Đứng Trục 1-5, 5-1, E-A: Mô tả hình khối kiến trúc, chi tiết vật liệu hoàn thiện ngoại thất (Tường sơn trắng, Mảng ốp gỗ/đá, Lan can kính), hệ thống cửa đi/cửa sổ, và chi tiết mái dốc hiện đại. Các chi tiết Lan can ban công và Gờ chống thấm được ghi chú mã hiệu chi tiết.
Mặt bằng Tum/Mái: Ngoài công năng sử dụng, hồ sơ làm rõ vị trí bồn nước, ống thoát nước, và cấu tạo giàn cây leo trên mái, thể hiện sự quan tâm đến kiến trúc xanh và giải pháp chống nóng.
Bộ hồ sơ này là tài liệu mẫu về cách trình bày bản vẽ kiến trúc chi tiết, đúng tỷ lệ (1/100), với đầy đủ hệ thống lưới trục, kích thước cơ bản và kích thước chi tiết, cao độ và ghi chú vật liệu hoàn thiện.
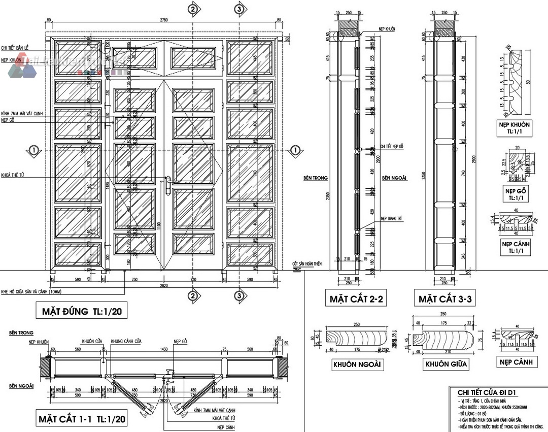
Là nguồn tư liệu lý tưởng để nghiên cứu về tổ chức không gian, thiết kế mặt tiền biệt thự hiện đại và giải pháp kỹ thuật thang bộ (CT), WC (SW/WC), và hệ thống cửa.
Tóm lại, hồ sơ thiết kế này không chỉ là một tài liệu thiết kế công trình mà còn là một giáo trình thực hành minh họa cho sự chuyên nghiệp trong triển khai bản vẽ kiến trúc. KTS và sinh viên có thể tải về file AutoCAD để nghiên cứu sâu hơn về từng chi tiết cấu tạo.