Định dạng: rar
Dung lượng file: 188 KB




Tài liệu này cung cấp chi tiết kỹ thuật của một thiết kế dàn dây leo, rất hữu ích cho các dự án kiến trúc và xây dựng hiện đại.
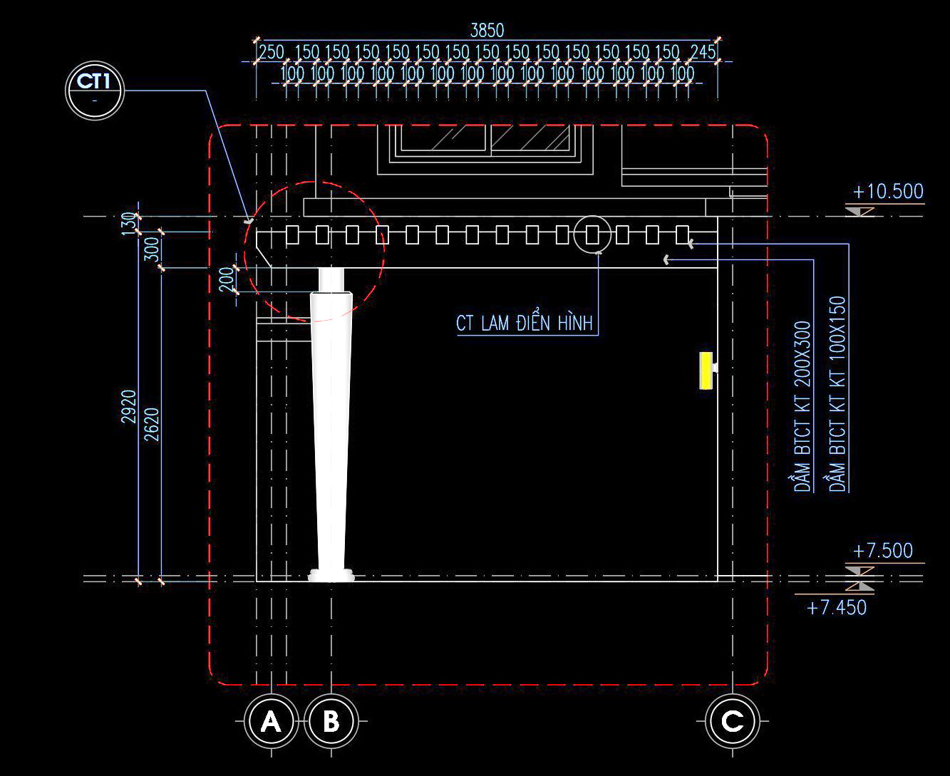
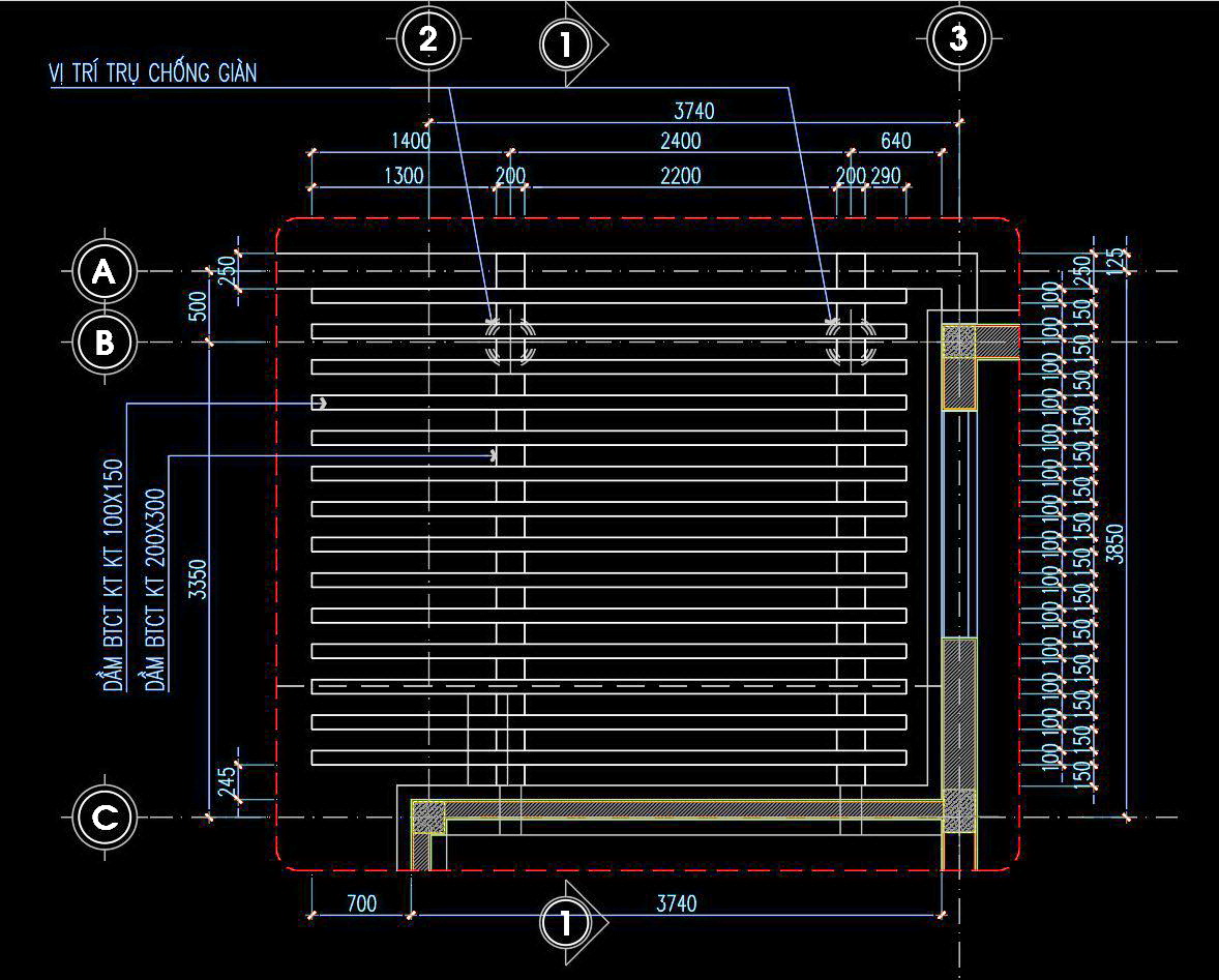
Hình ảnh trên mô tả một bản vẽ kỹ thuật chi tiết của một hệ thống dàn dây leo, cụ thể về các kích thước và cấu tạo với độ chính xác cao. Các phần được định rõ ràng với các chỉ dẫn cụ thể về kích thước và vật liệu.
Đặc điểm nổi bật của thiết kế bao gồm:
• Chất lượng chuyên nghiệp: Bản vẽ được thiết kế rõ ràng, dễ hiểu với các chi tiết chính xác, đảm bảo chất lượng và độ tin cậy khi áp dụng vào thực tế.
• Dễ dàng sử dụng: Các chỉ dẫn chi tiết và thông số rõ ràng giúp người dùng dễ dàng thực hiện thiết kế và thi công.
• Tương thích nhiều phần mềm: Hỗ trợ các định dạng phổ biến cho việc mở và chỉnh sửa trong nhiều phần mềm kỹ thuật.
• Tiết kiệm thời gian thiết kế: Giảm thiểu thời gian và công sức cần thiết để tạo một thiết kế từ đầu, cho phép nhanh chóng đưa vào áp dụng.
Ứng dụng thực tế của tài liệu này rất rộng rãi, từ việc dùng để thiết kế các công trình kiến trúc xanh, thân thiện với môi trường với không gian xanh mát, đến việc làm đẹp mặt tiền các tòa nhà với các giàn dây leo được bố trí hợp lý và thẩm mỹ. Lợi ích của việc sử dụng dàn dây leo không chỉ nằm ở giá trị thẩm mỹ mà còn ở khả năng giảm nhiệt độ, tạo bóng mát tự nhiên và cải thiện chất lượng không khí.
Các chi tiết kỹ thuật được thể hiện rõ ràng trên bản vẽ với kích thước tổng thể như chiều dài 3850 mm, chiều rộng 2920 mm và các thông số cụ thể của cấu kiện như dầm BTCT kích thước 200x300 mm và 100x150 mm, cho phép các kỹ sư dễ dàng tính toán và áp dụng vào thực tế.
Giá trị chuyên nghiệp:
Tài liệu này hướng đến các chuyên gia trong ngành kiến trúc và xây dựng, mang lại giá trị trong việc thiết kế, thi công, và đóng vai trò làm tài liệu tham khảo quan trọng cho các tiêu chuẩn hiện hành.
Hãy tải về để ứng dụng vào các dự án của bạn, hy vọng đây là tài liệu hữu ích đối với mọi người.
Khám phá thêm hàng nghìn mô hình AUTOCAD miễn phí khác!
Hãy truy cập ngay Thư viện AUTOCAD của chúng tôi để tải về những tài nguyên tuyệt vời, giúp nâng cao chất lượng và hiệu quả công việc của bạn!
<<<<< >>>>>