Ctrl+D

Đánh dấu để lưu lại

Tất cả

    SEARCH ITEMS

  • Thư viện Autocad
  • Thư viện Sketchup
  • Hồ sơ thiết kế
  • Thư viện 3ds max
  • Thư viện Lumion
  • Thư viện Revit
  • Thư viện Map
  • Thư viện Vật liệu - HDRI
  • Giáo trình học tập
  • Đồ án kiến trúc
  • Thư viện photoshop
  • Sách - Tạp chí kiến trúc
  • Phần mềm và Plugins
  • Phối cảnh 3D nội thất
  • Phối cảnh 3D ngoại thất

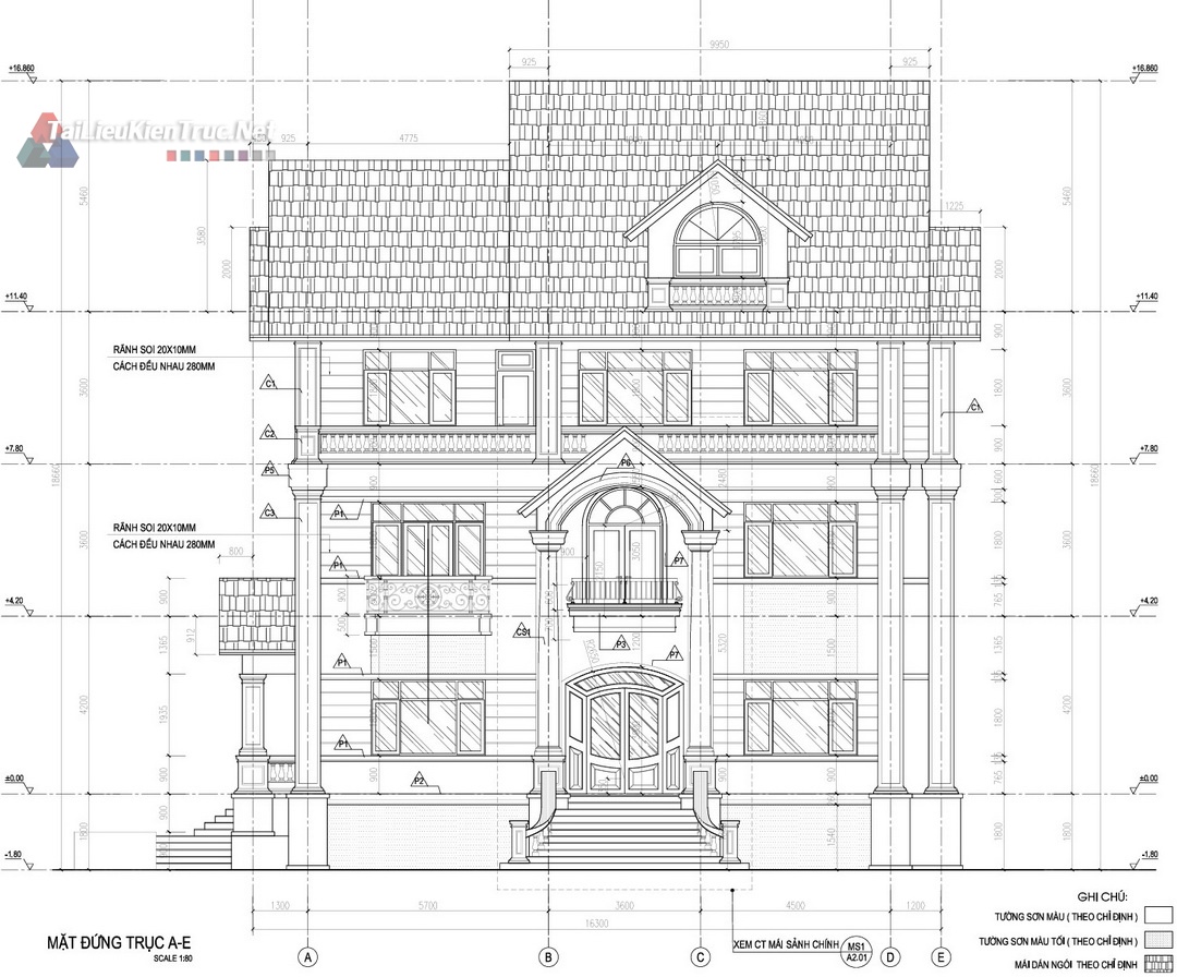
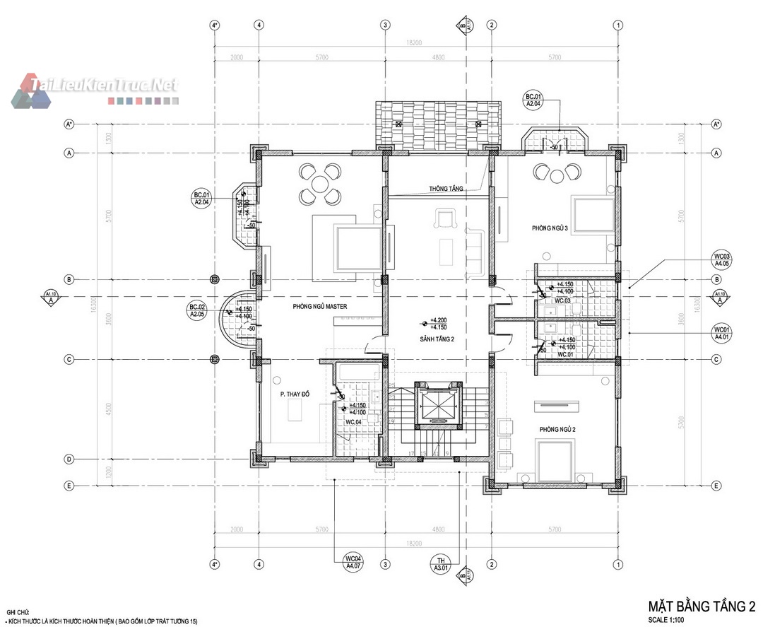
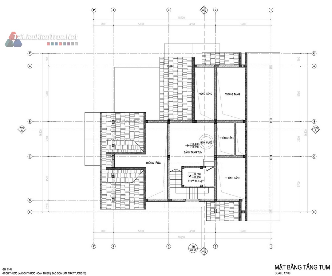
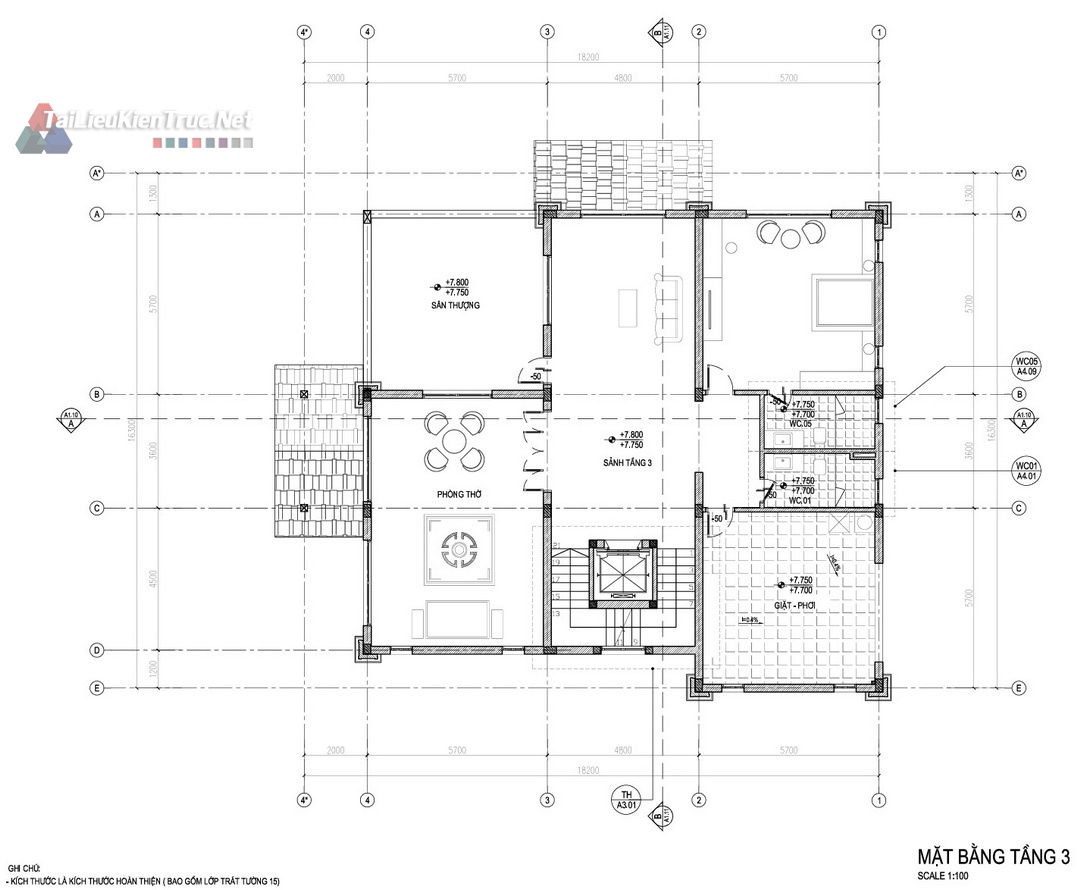
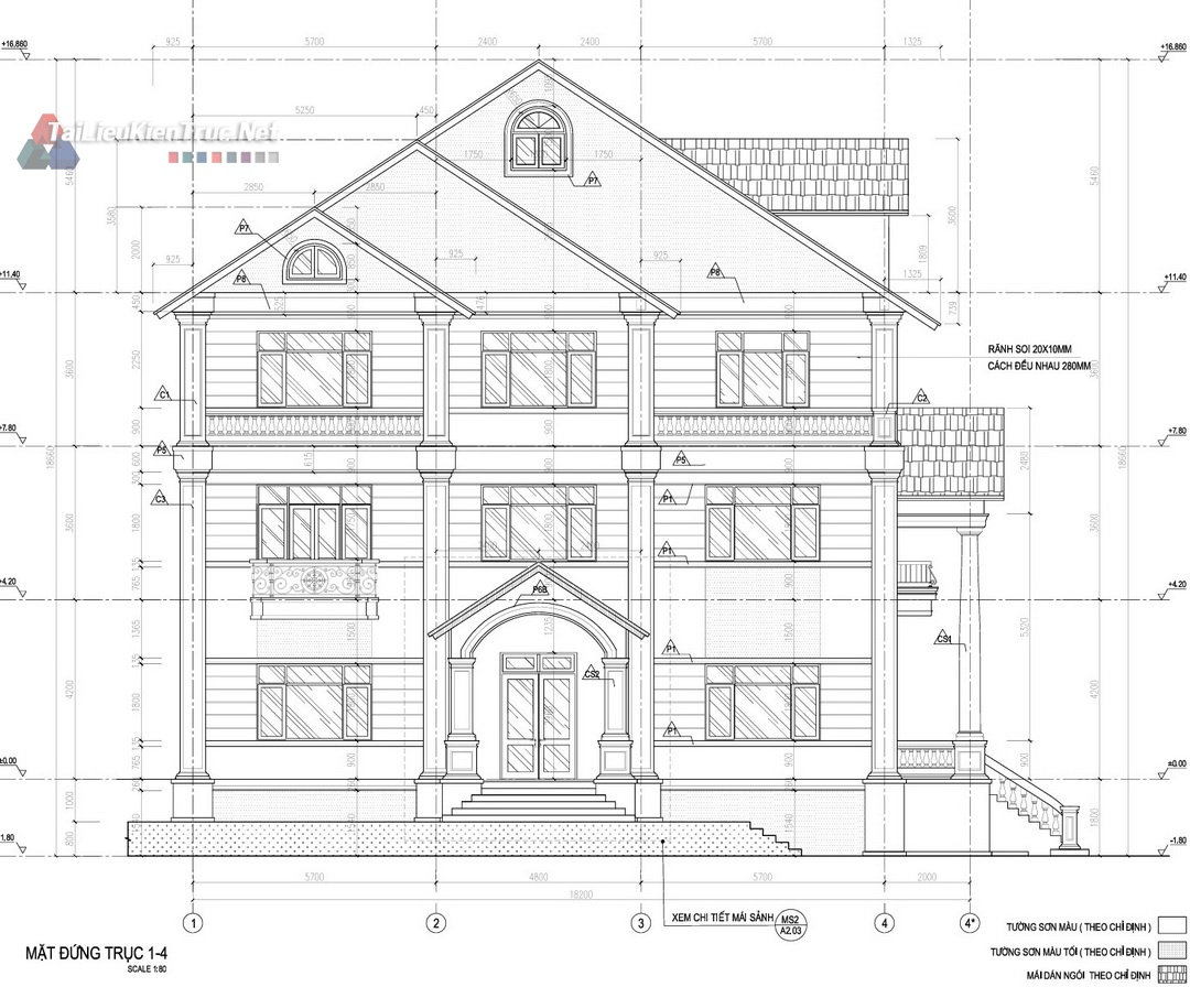
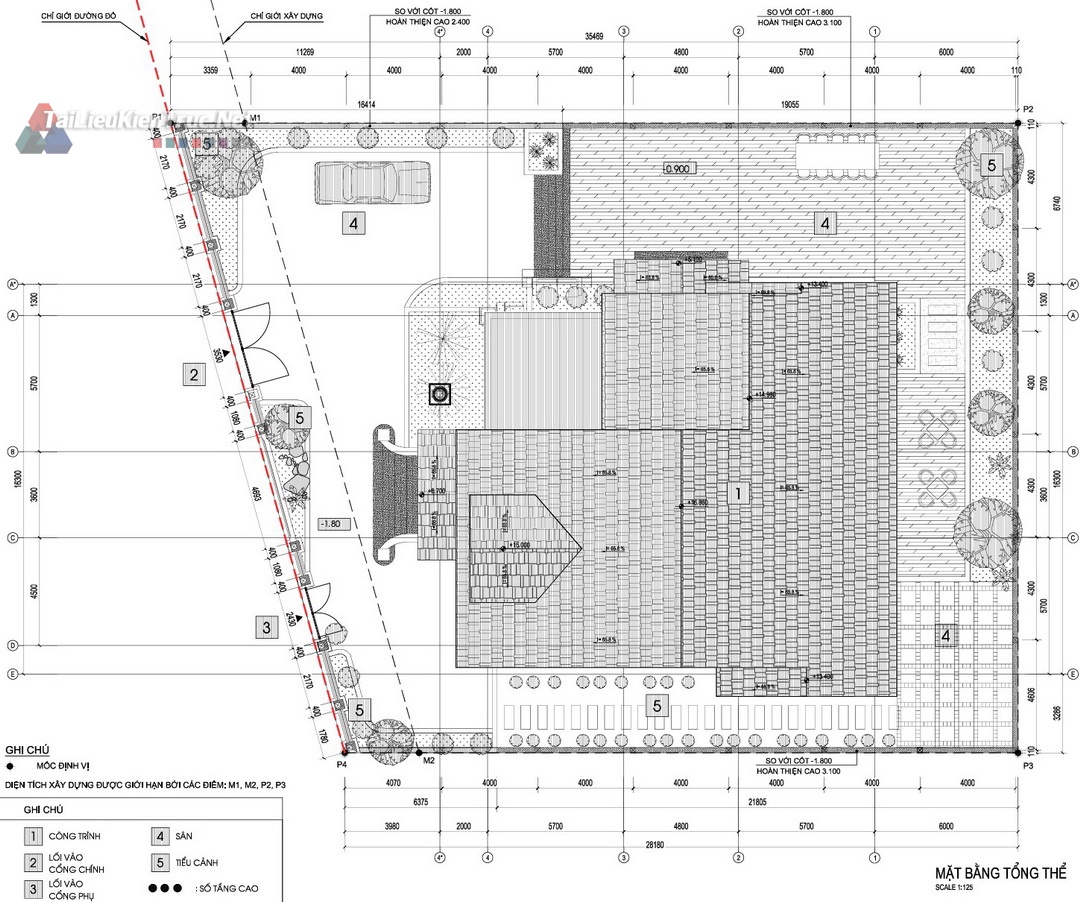
265. Hồ sơ thiết kế biệt thự 3 tầng 16x18m full kiến trúc

Trang chủ  >   Hồ sơ thiết kế >   Hồ sơ thiết kế biệt thự

  • 265. Hồ sơ thiết kế biệt thự 3 tầng 16x18m full kiến trúc
  • Có thể quan tâm

    265. Hồ sơ thiết kế biệt thự 3 tầng 16x18m full kiến trúc

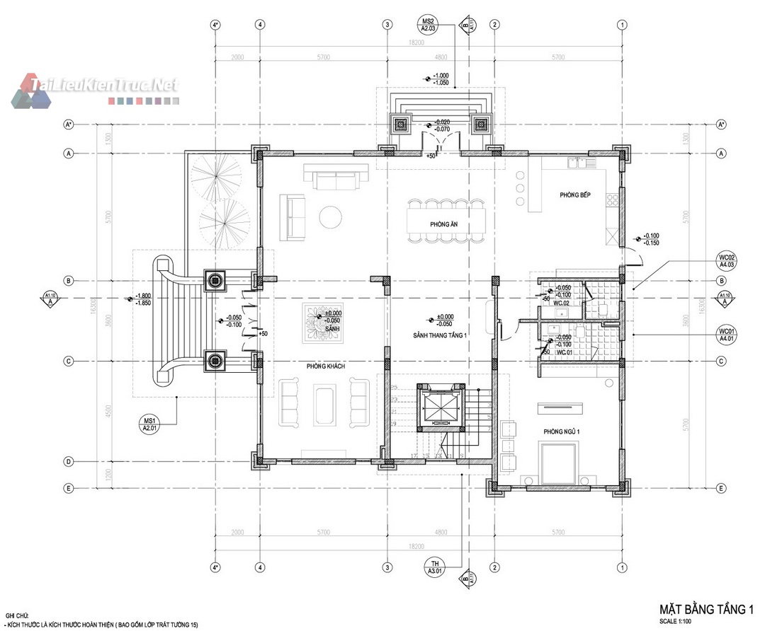
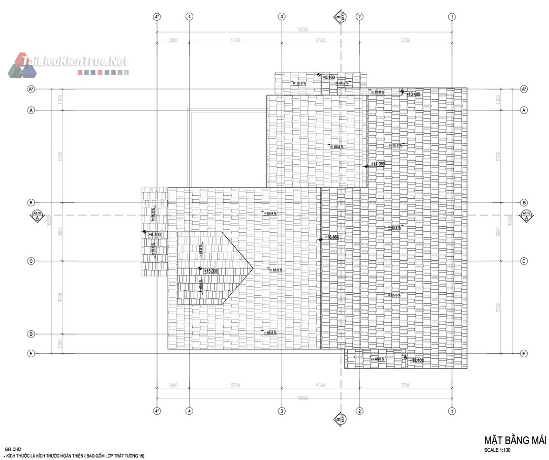
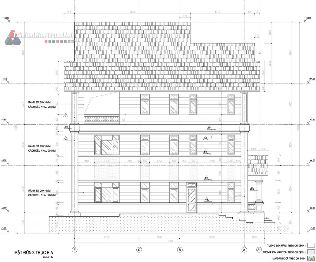
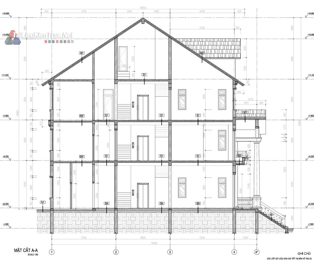
    Bộ hồ sơ này đầy đủ các bản vẽ chi tiết phần kiến trúc như danh mục bản vẽ dưới đây

     

     Mặt bằng, mặt đứng, mặt cắt

     

     

     Các chi tiết kiến trúc

     

     

     Chi tiết thang

     

     

     Chi tiết vệ sinh

     

     

     Chi tiết cảnh quan, cổng tường rào

     

     










    Tài liệu liên quan

    Quảng cáo