Ctrl+D

Đánh dấu để lưu lại

Tất cả

    SEARCH ITEMS

  • Thư viện Autocad
  • Thư viện Sketchup
  • Hồ sơ thiết kế
  • Thư viện 3ds max
  • Thư viện Lumion
  • Thư viện Revit
  • Thư viện Map
  • Thư viện Vật liệu - HDRI
  • Giáo trình học tập
  • Đồ án kiến trúc
  • Thư viện photoshop
  • Sách - Tạp chí kiến trúc
  • Phần mềm và Plugins
  • Phối cảnh 3D nội thất
  • Phối cảnh 3D ngoại thất

299. Hồ sơ thiết kế nhà phố 2 tầng 6.4x10m full kiến trúc kết cấu và phối cảnh sketchup

Trang chủ  >   Hồ sơ thiết kế >   Hồ sơ thiết kế nhà phố

  • 299. Hồ sơ thiết kế nhà phố 2 tầng 6.4x10m full kiến trúc kết cấu và phối cảnh sketchup
  • Có thể quan tâm

    Chúng tôi hân hạnh giới thiệu bộ Hồ sơ thiết kế nhà phố 2 tầng hiện đại cực kỳ đầy đủ và chuyên nghiệp. Đây là tài liệu tham khảo chất lượng cao, giúp các bạn nhanh chóng nắm bắt quy trình triển khai dự án từ ý tưởng đến thi công.

    Hồ sơ Thiết kế Nhà Phố 2 Tầng + Tum Hiện Đại

    Chúng tôi giới thiệu bộ Hồ sơ thiết kế nhà phố 2 tầng + tum (có sân thượng) đầy đủ và chuyên nghiệp. Đây là tài liệu tham khảo chất lượng cao, giúp các bạn nắm vững quy trình triển khai chi tiết cho loại hình nhà ở đô thị phổ biến này.

    Bộ hồ sơ bao gồm đầy đủ các phần kiến trúckết cấu chi tiết trong file Autocad, cùng với file Sketchup phối cảnh 3D.

     

    Phần Kiến trúc và Công năng (Chi tiết)

     

    • Phối cảnh 3D: Thiết kế mặt tiền hiện đại, vuông vắn, sử dụng mảng vật liệu gỗ và ban công kính tạo nên vẻ ngoài sang trọng, tối giản.

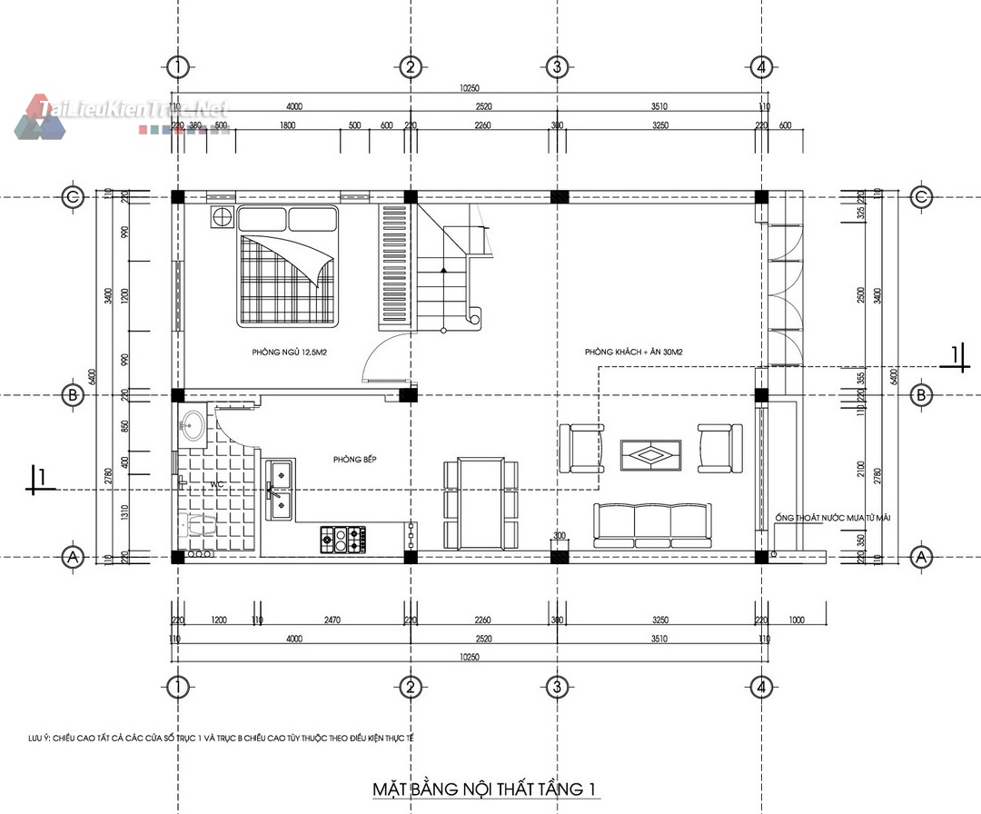
    • Mặt bằng Nội thất (2 Tầng Chính + Tum): Bố cục công năng được tối ưu cho diện tích hẹp và sâu:

      • Tầng 1: Gồm phòng khách + ăn lớn (), 1 phòng ngủ, và khu bếp.

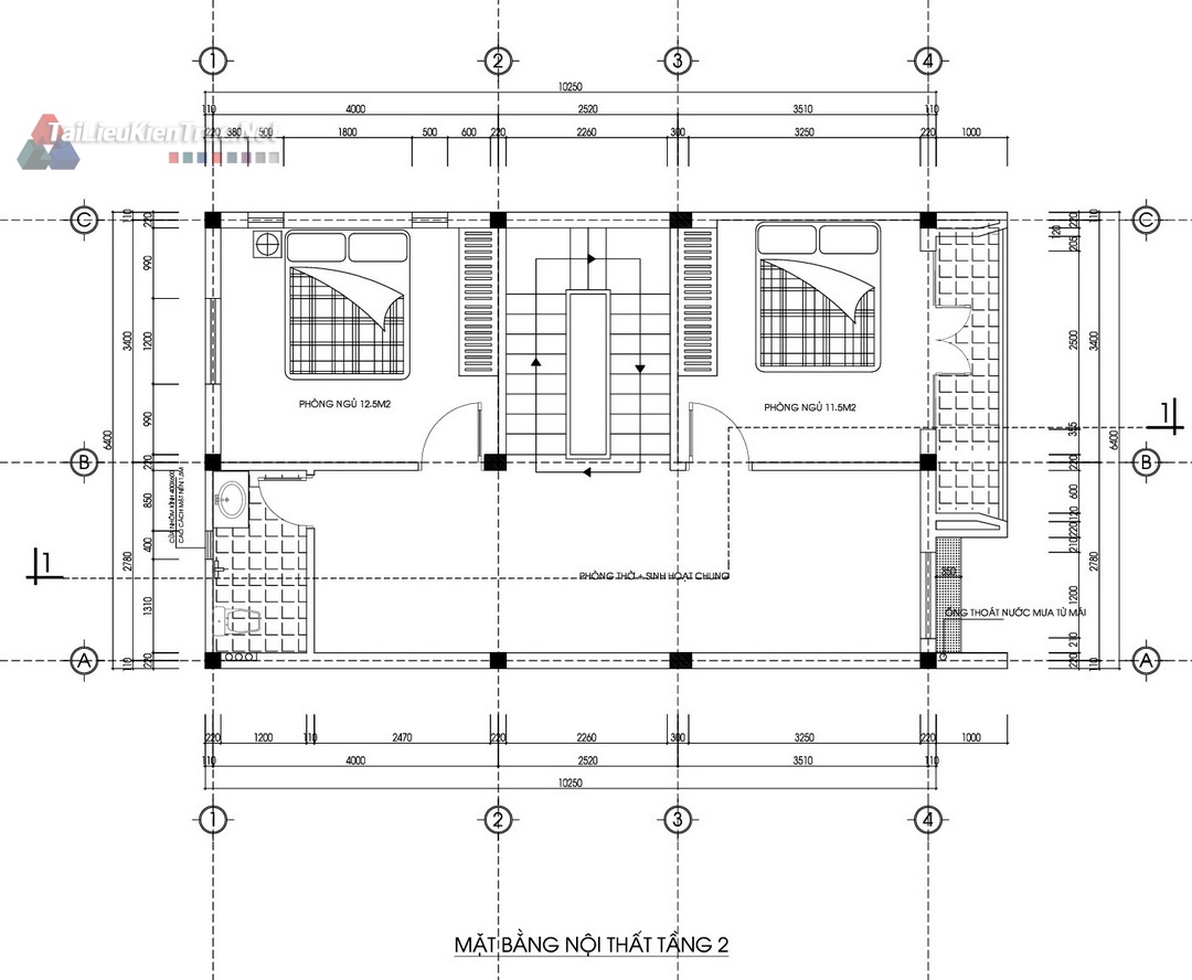
      • Tầng 2: Gồm 2 phòng ngủ rộng rãi (12.8m² và 11.5m²), và khu vệ sinh chung.

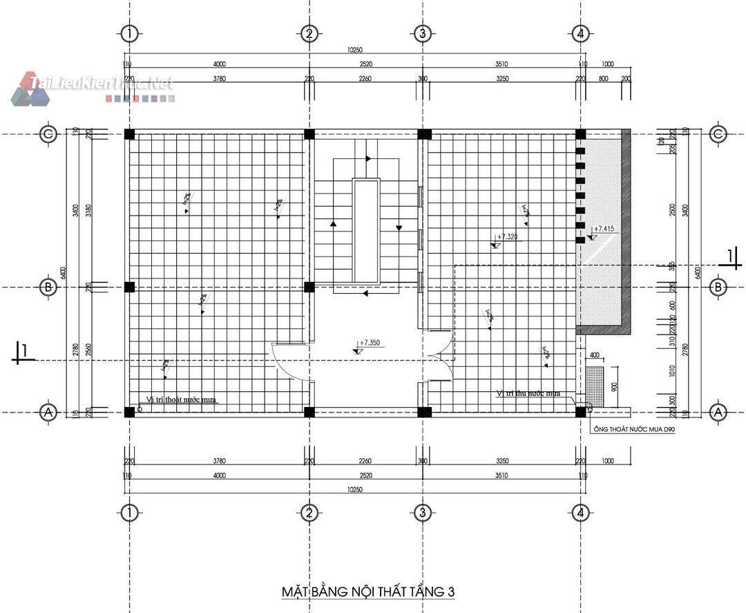
      • Tầng Tum (Sân thượng): Bố trí cầu thang lên sân thượng, có thể kết hợp làm phòng thờ hoặc kho, với khu vực sân thượng có sàn lát gạch và hệ thống thoát nước mưa D90.

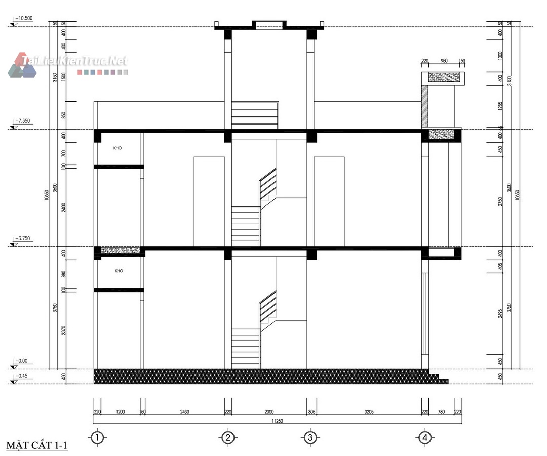
    • Mặt cắt 1-1: Thể hiện rõ cao độ từng sàn (ví dụ: +3.750,+7.350,+10.500) và cấu tạo thang bộ.

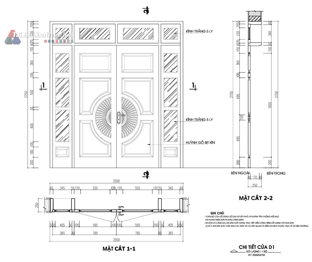
    • Chi tiết Cửa D1: Cung cấp thông số kỹ thuật chi tiết cho cửa chính (kích thước 2500), vật liệu và mặt cắt 1-1, 2-2.

     

    Phần Kết cấu (Chi tiết kỹ thuật)

     

    • Mặt bằng Móng: Bố trí chi tiết vị trí móng (M1, M2) và dầm móng, là cơ sở cho công tác đào và đổ móng.

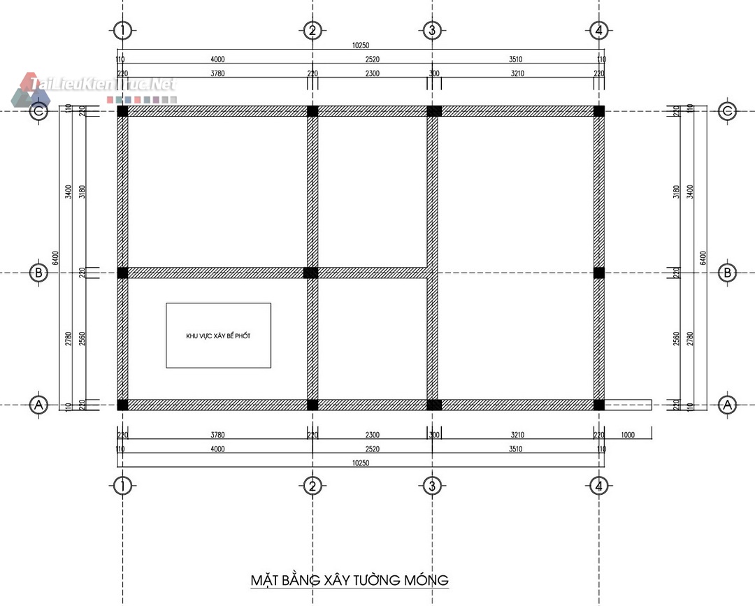
    • Mặt bằng Xây Tường Móng: Chỉ rõ ranh giới tường và vị trí xây dựng bể phốt dưới móng.

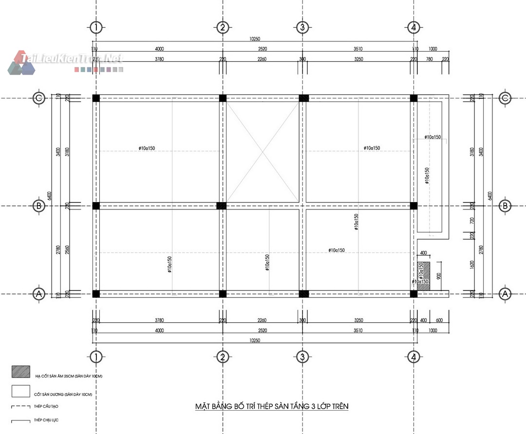
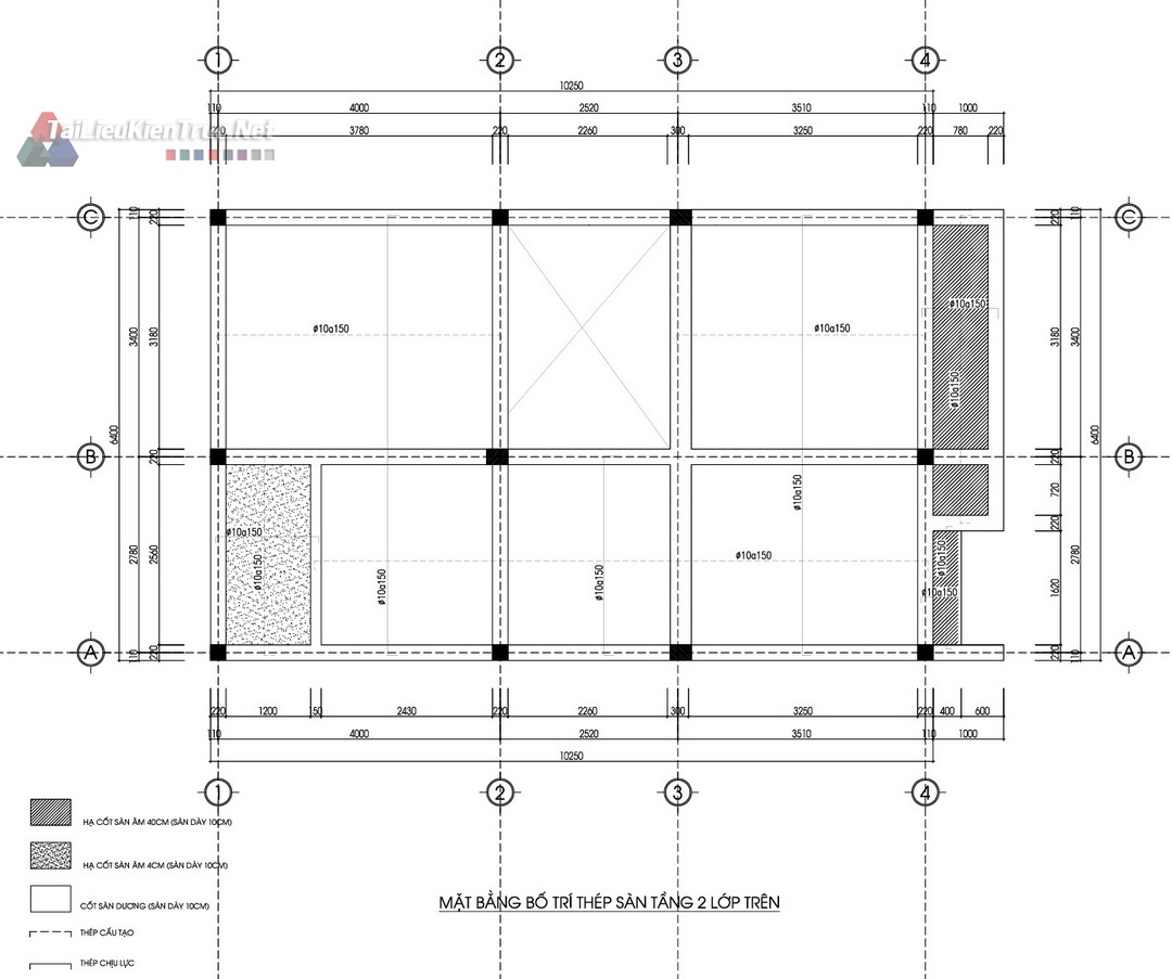
    • Mặt bằng Thép Sàn Tầng 2: Bố trí chi tiết thép sàn lớp trên (thường là ϕ10a150 cho thép chịu lực), cùng với các khu vực hạ cốt sàn (40cm/20cm, dày 10cm) cho nhà vệ sinh hoặc ban công.

    Ứng dụng và Lợi ích tham khảo

     

    • Học tập chuyên sâu: Tài liệu lý tưởng để sinh viên kiến trúc hiểu cấu tạo của một hồ sơ kỹ thuật đầy đủ, từ kiến trúc đến kết cấu cho nhà phố.

    • Triển khai nhanh: KTS có thể tham khảo trực tiếp giải pháp bố trí công năng, chi tiết kết cấu và kích thước tiêu chuẩn để tăng tốc độ triển khai dự án.

    • Thiết kế thực tế: Nắm bắt được các chi tiết kỹ thuật quan trọng như cao độ, chống thấm, và bố trí thép sàn trong thực tế xây dựng.

    Hãy sử dụng bộ hồ sơ này như một công cụ đắc lực để nâng cao chất lượng công trình của bạn!















    Tài liệu liên quan

    Quảng cáo