Định dạng: zip
Dung lượng file: 1 MB



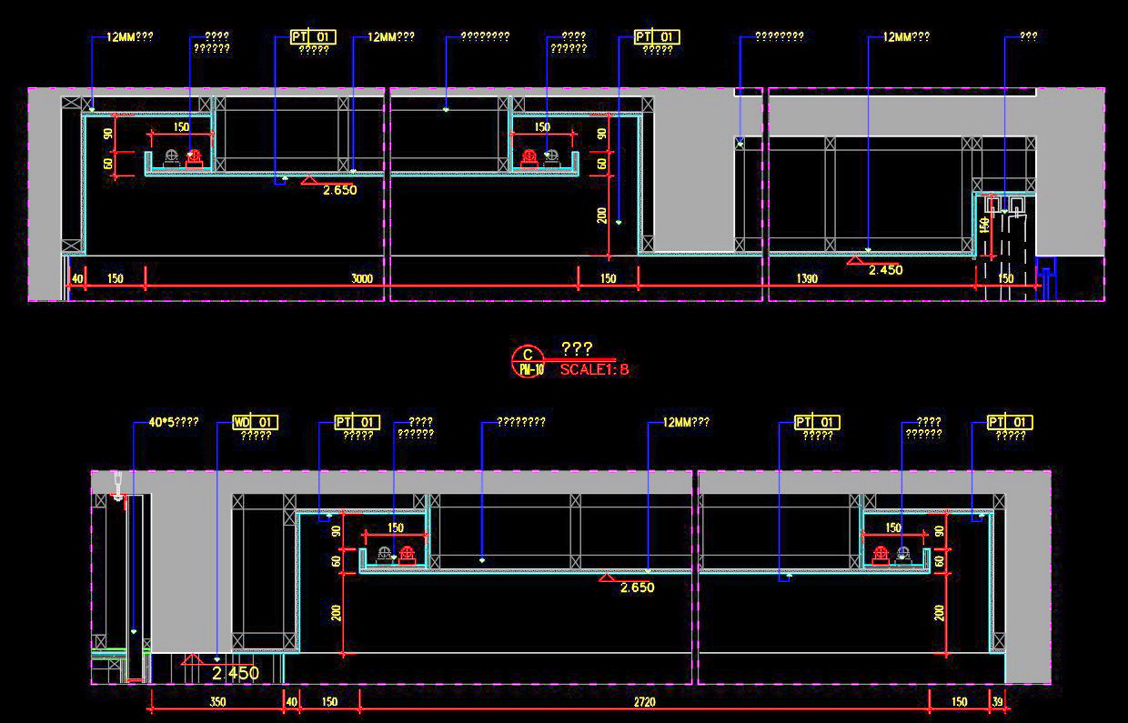
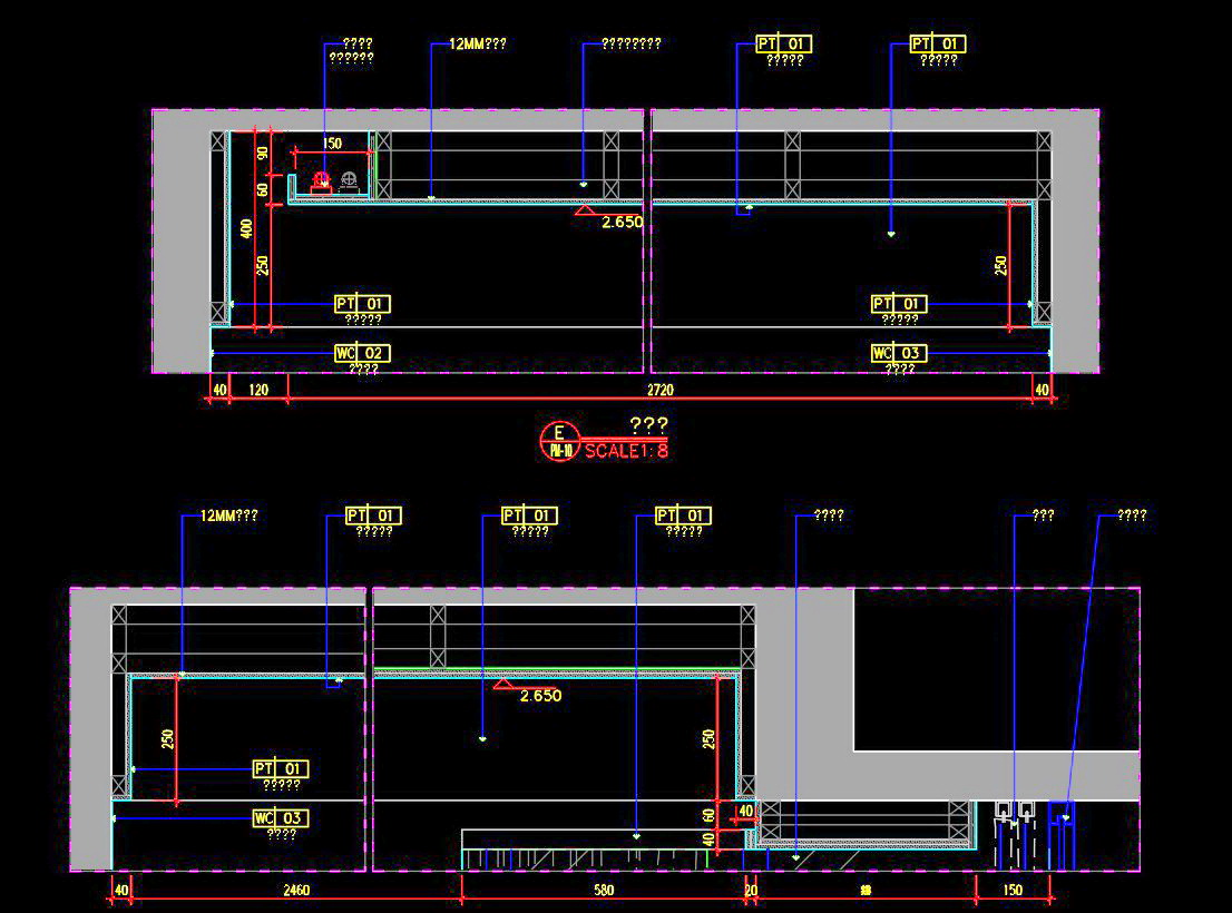
Tài liệu này cung cấp cái nhìn chi tiết về sơ đồ thiết kế kỹ thuật của một công trình kiến trúc hiện đại. Được thiết kế với độ chính xác và chuyên nghiệp cao, các bản vẽ hiển thị các mặt cắt và mặt bằng với chú thích chi tiết.
1. Nội dung chính:
Trong hình ảnh, chúng ta có thể thấy các bản vẽ kỹ thuật với các chi tiết cụ thể như kích thước, vật liệu và hướng dẫn lắp ráp. Các số liệu được biểu thị rõ ràng và dễ hiểu, giúp người xem dễ dàng nắm bắt các thông số quan trọng của thiết kế. Mỗi chi tiết nhỏ đều được thể hiện tỉ mỉ nhằm hỗ trợ quá trình thi công và giám sát.
- Đặc điểm nổi bật:
• Chất lượng chuyên nghiệp: Mọi chi tiết đều được thể hiện rõ ràng với các ký hiệu và chú thích tiêu chuẩn.
• Dễ dàng sử dụng: Các sơ đồ được sắp xếp hợp lý, giúp người dùng có thể tra cứu thông tin một cách nhanh chóng.
• Tương thích nhiều phần mềm: Dễ dàng nhập và sử dụng trong các phần mềm thiết kế phổ biến như AutoCAD, Revit.
• Tiết kiệm thời gian thiết kế: Giảm bớt công sức khi phác họa từ đầu nhờ vào các chi tiết có sẵn.
Ứng dụng của các bản vẽ này rất đa dạng, từ thiết kế, quy hoạch cho đến giảng dạy và nghiên cứu. Đối với các dự án xây dựng, tài liệu này cung cấp một nền tảng vững chắc giúp đội ngũ kỹ sư và kiến trúc sư thực hiện công việc hiệu quả hơn.
Chi tiết kỹ thuật bao gồm các kích thước như chiều dài 2450mm, chiều rộng 2700mm và các thông số về vật liệu như độ dày 12mm, đảm bảo tính chính xác và độ bền vững của công trình.
2. Giá trị chuyên nghiệp:
Các bản vẽ này đặc biệt hữu ích cho các chuyên gia trong lĩnh vực kiến trúc và xây dựng, hỗ trợ sự sáng tạo và đổi mới trong thiết kế và thi công, đồng thời là nguồn tài liệu quý giá để học tập và tham khảo.
Kết thúc: Hãy tải về để ứng dụng vào các dự án của bạn, hy vọng đây là tài liệu hữu ích đối với mọi người.
Khám phá thêm hàng nghìn mô hình AUTOCAD miễn phí khác!
Hãy truy cập ngay Thư viện AUTOCAD của chúng tôi để tải về những tài nguyên tuyệt vời, giúp nâng cao chất lượng và hiệu quả công việc của bạn!
<<<<< >>>>>