Định dạng: rar
Dung lượng file: 189 KB


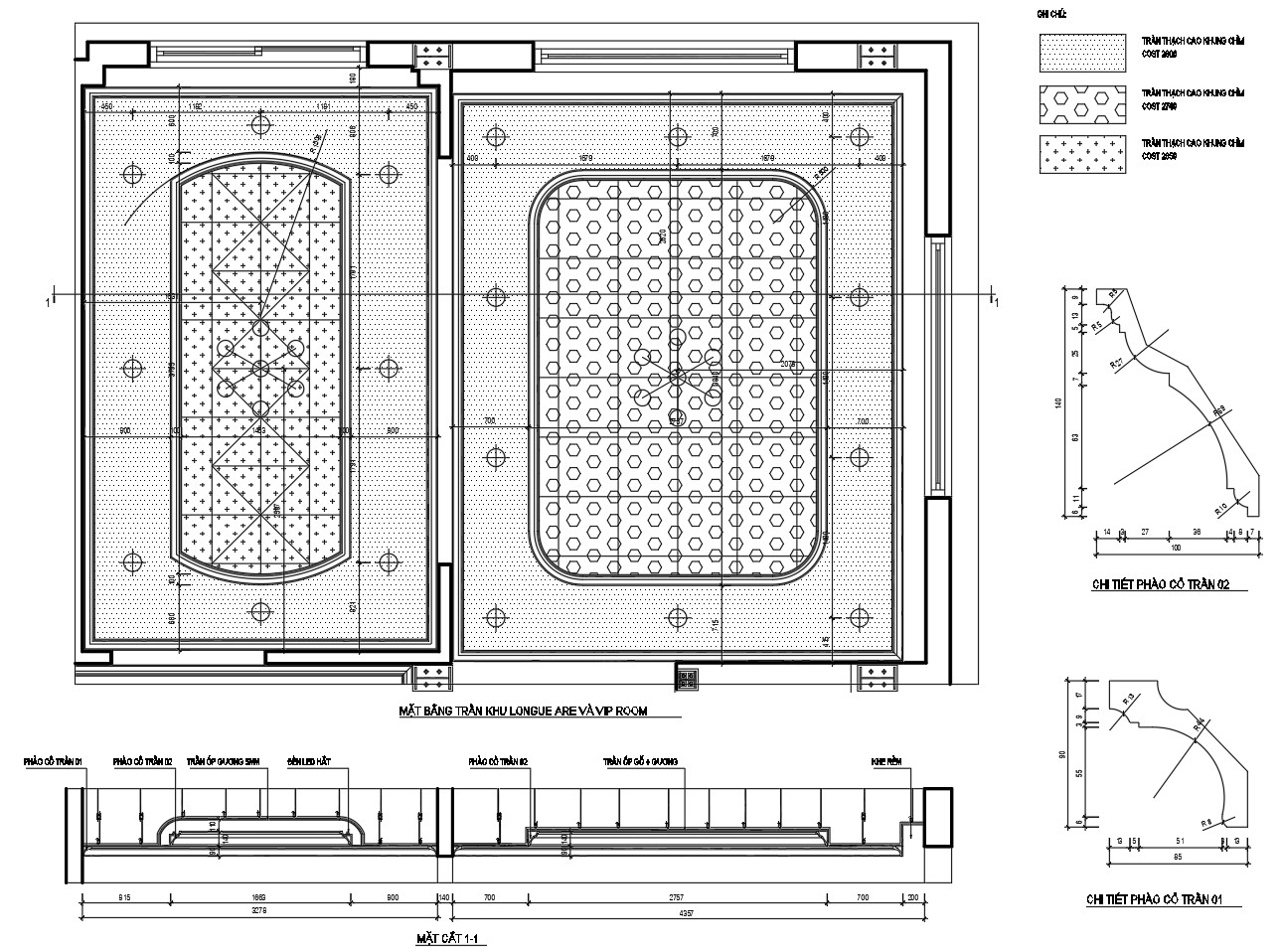
Tài liệu này cung cấp bản vẽ chi tiết cho thiết kế trần khu vực lounge và VIP. Đây là tài liệu thiết kế chuyên nghiệp hữu ích trong lĩnh vực kiến trúc và xây dựng.
Trong hình ảnh, bản vẽ chi tiết mô tả cấu trúc và thiết kế của trần các khu vực phòng khách và VIP, gồm các chi tiết kỹ thuật và kích thước cần thiết. Các bản vẽ này không chỉ cung cấp cái nhìn sâu sắc vào thiết kế tổng thể mà còn tập trung vào các yếu tố chính như chi tiết phào chỉ và cấu trúc bên trong.
Đặc điểm nổi bật:
- Chất lượng chuyên nghiệp: Các bản vẽ được thực hiện với độ chính xác cao, đảm bảo chất lượng chuyên nghiệp.
- Dễ dàng sử dụng: Các chỉ dẫn rõ ràng, giúp người dùng dễ dàng ứng dụng và điều chỉnh theo nhu cầu thực tế.
- Tương thích nhiều phần mềm: Định dạng phù hợp với nhiều phần mềm thiết kế hiện nay, từ AutoCAD đến Revit.
- Tiết kiệm thời gian thiết kế: Giúp rút ngắn thời gian trong quá trình thiết kế và hiện thực hóa dự án.
Mỗi bản vẽ bao gồm mặt bằng của khu vực trần, các chi tiết mặt cắt và chú thích chi tiết như loại trần thạch cao sử dụng, vị trí và kích thước của các yếu tố trang trí. Điều này không chỉ giúp các kiến trúc sư có cái nhìn tốt hơn về không gian tổng thể mà còn đóng một vai trò quan trọng trong việc dự toán và kiểm soát chất lượng thi công.
Giá trị chuyên nghiệp:
Tài liệu này hướng tới đối tượng là các chuyên gia trong lĩnh vực kiến trúc và xây dựng. Nó là công cụ hỗ trợ đắc lực trong công việc thiết kế, thi công và tham khảo học tập, đảm bảo hiệu quả và chất lượng cho các dự án.
Hãy tải về để ứng dụng vào các dự án của bạn, hy vọng đây là tài liệu hữu ích đối với mọi người.
Khám phá thêm hàng nghìn mô hình AUTOCAD miễn phí khác!
Hãy truy cập ngay Thư viện AUTOCAD của chúng tôi để tải về những tài nguyên tuyệt vời, giúp nâng cao chất lượng và hiệu quả công việc của bạn!
<<<<< >>>>>