Định dạng: dwg
Dung lượng file: 196 KB

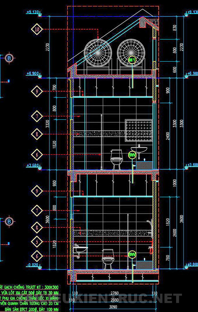
Tài liệu này cung cấp một cái nhìn chi tiết về bản vẽ kỹ thuật cho một công trình xây dựng tiêu chuẩn. Các hình ảnh phác thảo chi tiết về quy hoạch không gian nội bộ của một tòa nhà với sự chú trọng vào hệ thống phòng ốc và cấu trúc xây dựng.
Bản vẽ bao gồm nhiều mặt cắt đứng và cắt ngang, trình bày chi tiết các tầng khác nhau và bố trí bên trong như nhà vệ sinh, văn phòng làm việc cũng như các chi tiết kỹ thuật khác. Điểm nhấn của bản vẽ này nằm ở sự bố trí hợp lý và sử dụng không gian tối ưu.
Đặc điểm nổi bật:
- Chất lượng chuyên nghiệp: Bản vẽ được thực hiện với độ chính xác cao, thể hiện đầy đủ các chi tiết cần thiết cho việc thi công.
- Dễ dàng sử dụng: Bố cục rõ ràng, mỗi phần của bản vẽ đều có chỉ số và ký hiệu giúp dễ dàng tra cứu.
- Tương thích nhiều phần mềm: Có thể áp dụng vào các chương trình CAD phổ biến để chỉnh sửa khi cần thiết.
- Tiết kiệm thời gian thiết kế: Cung cấp đầy đủ thông tin giúp rút ngắn thời gian chuẩn bị trong giai đoạn tiền xây dựng.
Ứng dụng thực tế của bản vẽ này rất đa dạng, từ việc hỗ trợ xây dựng nhà ở dân dụng đến các dự án thương mại quy mô lớn. Bằng việc sử dụng bản vẽ này, các kỹ sư và kiến trúc sư có thể đảm bảo độ chính xác và bảo đảm chất lượng công trình. Việc chi tiết rõ ràng về kích thước và vật liệu giúp tạo điều kiện thuận lợi cho quá trình thi công, từ đó giảm thiểu sai sót và tăng hiệu quả lao động.
Các chi tiết kỹ thuật trong bản vẽ bao gồm thông tin về kích thước cụ thể cho từng phòng, vật liệu sử dụng cho từng phần như gạch lát, tường, và hệ thống ống nước. Đặc biệt, chú ý đến các yếu tố an toàn như vách tắm kính an toàn và các chi tiết hoàn thiện.
Giá trị chuyên nghiệp:
Dành cho các chuyên gia trong lĩnh vực kiến trúc và xây dựng, tài liệu này là công cụ đắc lực cho việc thiết kế, thi công, và học tập.
Hãy tải về để ứng dụng vào các dự án của bạn, hy vọng đây là tài liệu hữu ích đối với mọi người.
Khám phá thêm hàng nghìn mô hình AUTOCAD miễn phí khác!
Hãy truy cập ngay Thư viện AUTOCAD của chúng tôi để tải về những tài nguyên tuyệt vời, giúp nâng cao chất lượng và hiệu quả công việc của bạn!
<<<<< >>>>>