Định dạng: rar
Dung lượng file: 200 KB





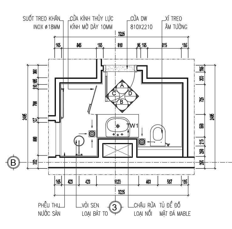
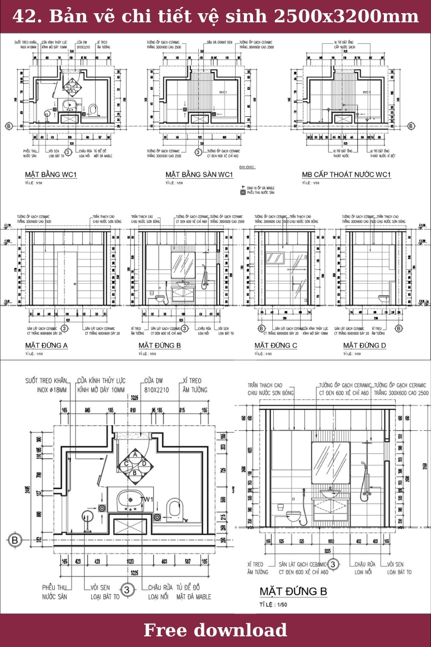
Tài liệu này cung cấp một cái nhìn chi tiết về bản vẽ kỹ thuật của phòng vệ sinh có kích thước 2500x3200mm, phục vụ nhu cầu thiết kế và xây dựng.
Bản vẽ cung cấp các thông số kỹ thuật tỉ mỉ của một phòng vệ sinh tiêu chuẩn, bao gồm nhiều góc độ từ mặt bằng cho đến mặt đứng. Tài liệu này là một hướng dẫn chi tiết cho các kỹ sư và kiến trúc sư trong việc thiết kế và thi công phòng vệ sinh có kích cỡ cụ thể.
Nội dung chính bao gồm các bản vẽ chi tiết như Mặt bằng WC1, Mặt đứng A, B, C, D và hệ thống cấp thoát nước. Các bản vẽ đều trình bày chi tiết về kích thước và vị trí của từng thành phần như bồn cầu, chậu rửa, vòi sen cùng các vật liệu sử dụng như gạch ceramic, kính thủy lực, và trần thạch cao.
Đặc điểm nổi bật:
- Chất lượng chuyên nghiệp: Bản vẽ được thực hiện với độ chính xác cao và đáng tin cậy.
- Dễ dàng sử dụng: Các chi tiết được trình bày rõ ràng, giúp người sử dụng dễ dàng hình dung và áp dụng.
- Tương thích nhiều phần mềm: Có thể dễ dàng nhập khẩu và chỉnh sửa trong các phần mềm CAD tiêu chuẩn.
- Tiết kiệm thời gian thiết kế: Các chi tiết đã được chuẩn hóa, giúp giảm bớt thời gian thiết kế lại từ đầu.
Ứng dụng thực tế của bản vẽ không chỉ dừng lại ở việc sử dụng trong các dự án xây dựng chuyên nghiệp, mà còn rất hữu ích cho mục đích học tập và tham khảo trong các khóa học liên quan đến kiến trúc và xây dựng. Với các chi tiết cụ thể như chiều cao tường gạch, loại vật liệu lát sàn, và hệ thống thoát nước, người dùng dễ dàng chỉnh sửa cho phù hợp với yêu cầu thực tế của các dự án khác nhau.
Giá trị chuyên nghiệp:
Các tài liệu này phù hợp với các chuyên gia trong lĩnh vực kiến trúc và xây dựng, phục vụ hiệu quả cho công việc thiết kế, thi công, học tập, và tham khảo.
Hãy tải về để ứng dụng vào các dự án của bạn, hy vọng đây là tài liệu hữu ích đối với mọi người.
Khám phá thêm hàng nghìn mô hình AUTOCAD miễn phí khác!
Hãy truy cập ngay Thư viện AUTOCAD của chúng tôi để tải về những tài nguyên tuyệt vời, giúp nâng cao chất lượng và hiệu quả công việc của bạn!
<<<<< >>>>>