Định dạng: rar
Dung lượng file: 201 KB






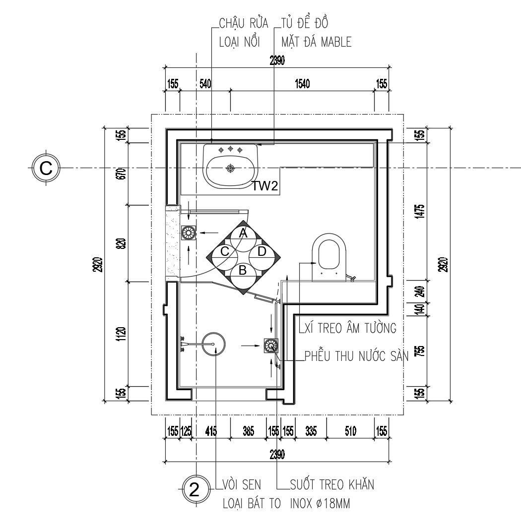
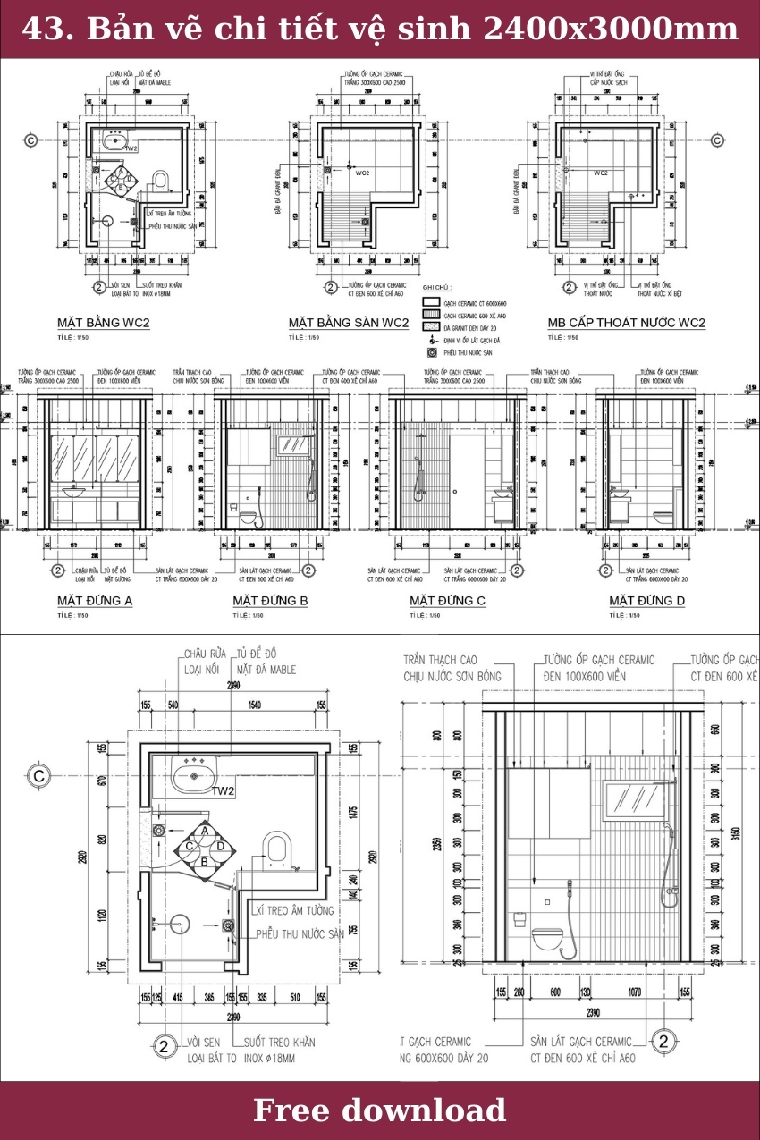
Tài liệu này cung cấp một bản vẽ chi tiết về thiết kế phòng vệ sinh kích thước 2400x3000mm. Đây là một tài liệu quan trọng dành cho các kỹ sư, kiến trúc sư và nhà thầu trong việc thiết kế và thi công.
Bản vẽ chi tiết này bao gồm các mặt bằng và các mặt đứng của phòng vệ sinh. Mỗi mặt được thiết kế tỉ mỉ và rõ ràng, giúp dễ dàng hình dung không gian thực tế. Nó cung cấp các thông số kỹ thuật chi tiết và bố trí các thiết bị vệ sinh như bồn cầu, bồn rửa và vòi sen.
Đặc điểm nổi bật:
• Chất lượng chuyên nghiệp: Bản vẽ được thể hiện theo tỷ lệ chuẩn, rõ ràng và chính xác.
• Dễ dàng sử dụng: Các ký hiệu và chi tiết rõ ràng, dễ dàng đọc và hiểu ngay cả với người mới bắt đầu.
• Tương thích nhiều phần mềm: Định dạng có thể được sử dụng với nhiều phần mềm thiết kế khác nhau.
• Tiết kiệm thời gian thiết kế: Giảm thiểu thời gian lên ý tưởng và thiết kế nhờ vào chi tiết có sẵn.
Ứng dụng thực tế của bản vẽ này là trong việc thi công và lắp đặt phòng vệ sinh tại các công trình xây dựng dân dụng hoặc thương mại. Nó giúp nhà thiết kế và thi công dễ dàng định hình không gian và bố trí thiết bị một cách hiệu quả nhất.
Về mặt kỹ thuật, bản vẽ cung cấp kích thước cụ thể của từng khu vực trong phòng và các vật liệu cần sử dụng như gạch ceramic, trọng lượng tường và trần. Những thông tin này rất hữu ích trong việc tính toán chi phí và thời gian thi công.
Giá trị chuyên nghiệp:
Bản vẽ này hướng đến các đối tượng là các chuyên gia trong lĩnh vực kiến trúc và xây dựng, có thể sử dụng trong thiết kế, thi công, học tập và tham khảo.
Hãy tải về để ứng dụng vào các dự án của bạn, hy vọng đây là tài liệu hữu ích đối với mọi người.
Khám phá thêm hàng nghìn mô hình AUTOCAD miễn phí khác!
Hãy truy cập ngay Thư viện AUTOCAD của chúng tôi để tải về những tài nguyên tuyệt vời, giúp nâng cao chất lượng và hiệu quả công việc của bạn!
<<<<< >>>>>