-
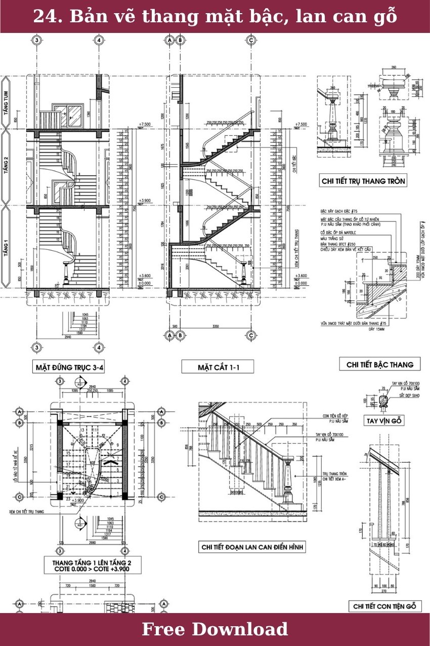
24. Bản vẽ chi tiết thang mặt bậc, lan can gỗ tải miễn phí
-
23. Bản vẽ chi tiết thang lan can con tiện gỗ miễn phí
-
22. Bản vẽ chi tiết thang lan can kính miễn phí
-
21. bản vẽ chi tiết thang lan can tay vịn gỗ miễn phí
-
20. Chi tiết thang lan can thép tay vịn gỗ
-
19. Tải miễn phí bản vẽ chi tiết thang lan can gỗ
-
18. Bản vẽ chi tiết thang bộ lan can gỗ
-
17. Bản vẽ chi tiết thang ziczac lan can kính miễn phí
14. Bản vẽ chi tiết thang mặt bậc đá lan can con tiện gỗ tự nhiên
12. Bản vẽ chi tiết thang sắt 2 vế miễn phí tải về
8. Bản vẽ chi tiết thang 2 vế miễn phí
12. Chi tiết con tiện tay vịn gỗ cầu thang miễn phí
7. Bản vẽ chi tiết thang bộ thang máy nhà 8 tầng miễn phí
285 Hồ sơ thiết kế nhà phố 2 tầng 5x16m full kiến trúc kết cấu điện nước
239. Hồ sơ thiết kế biệt thự 3 tầng tân cổ điển 10x20m full kiến trúc
277. Hồ sơ thiết kế nhà phố 6 tầng tân cổ điển 4.5x8.2m full kiến trúc
275. Hồ sơ thiết kế nhà liền kề 5 tầng goldsilk complex 5x15m full kiến trúc, kết cấu
Hồ sơ thiết kế thi công biệt thự gia đình 3 tầng kích thước 10x15m 0156 full kiến trúc
6. Bản vẽ thang tròn tân cổ điển
4. Bản vẽ chi tiết thang bậc đá lan can kính
5. Bản vẽ chi tiết thang bậc ốp đá, lan can kính và thép bản
1. Bản vẽ chi tiết thang miễn phí
Thư viện autocad dốc lên cho người khuyết tật 5 bậc chiều dài 9m
