Ctrl+D

Đánh dấu để lưu lại

Tất cả

    SEARCH ITEMS

  • Thư viện Autocad
  • Thư viện Sketchup
  • Hồ sơ thiết kế
  • Thư viện 3ds max
  • Thư viện Lumion
  • Thư viện Revit
  • Thư viện Map
  • Thư viện Vật liệu - HDRI
  • Giáo trình học tập
  • Đồ án kiến trúc
  • Thư viện photoshop
  • Sách - Tạp chí kiến trúc
  • Phần mềm và Plugins
  • Phối cảnh 3D nội thất
  • Phối cảnh 3D ngoại thất

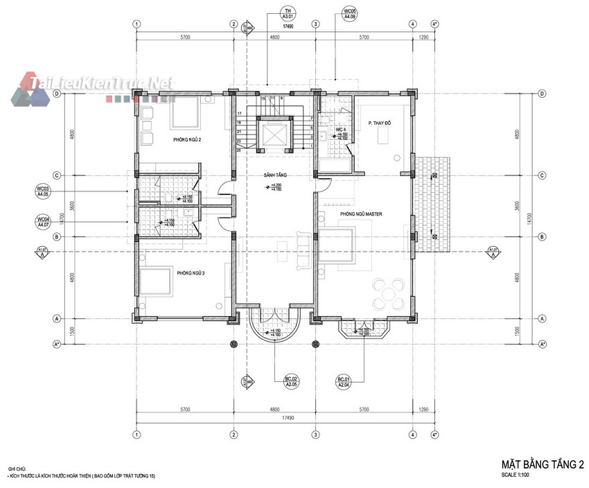
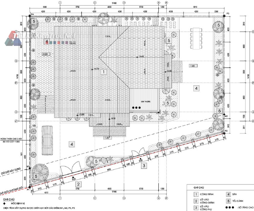
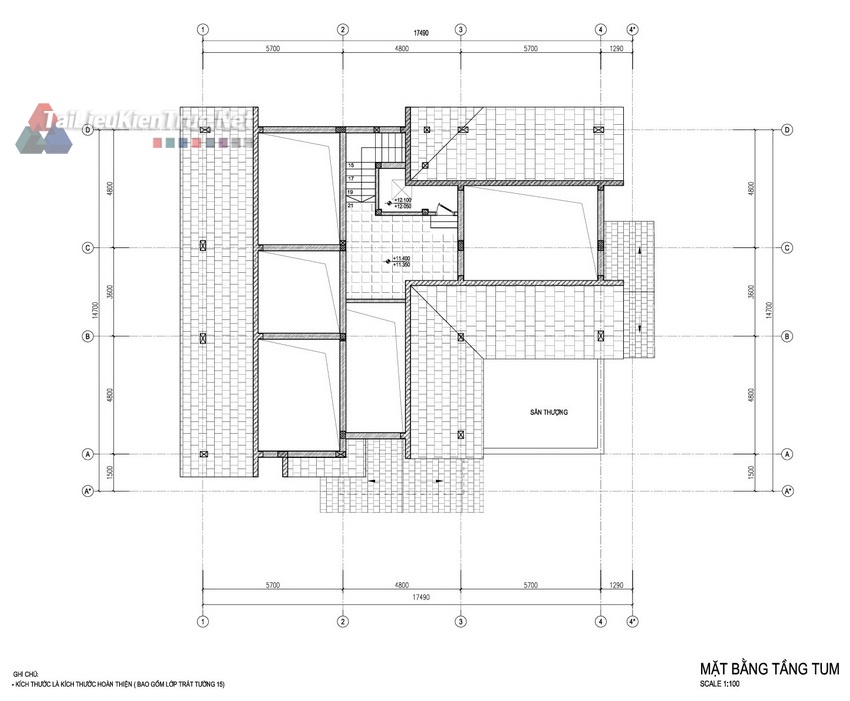
266. Hồ sơ thiết kế biệt thự 3 tầng 14.7x17.5m full kiến trúc

Trang chủ  >   Hồ sơ thiết kế >   Hồ sơ thiết kế biệt thự

  • 266. Hồ sơ thiết kế biệt thự 3 tầng 14.7x17.5m full kiến trúc
  • Có thể quan tâm

    266. Hồ sơ thiết kế biệt thự 3 tầng 14.7x17.5m full kiến trúc

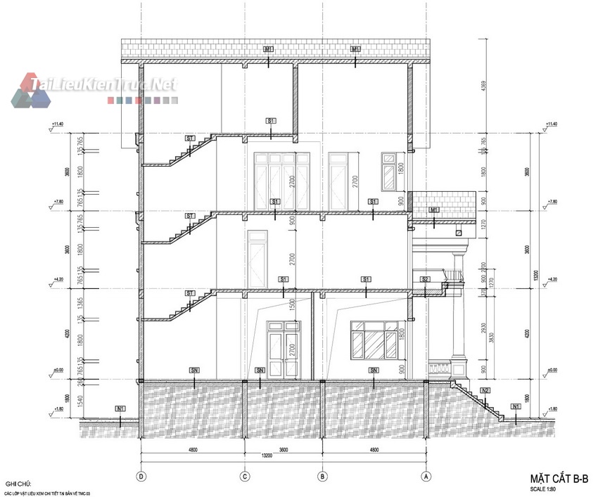
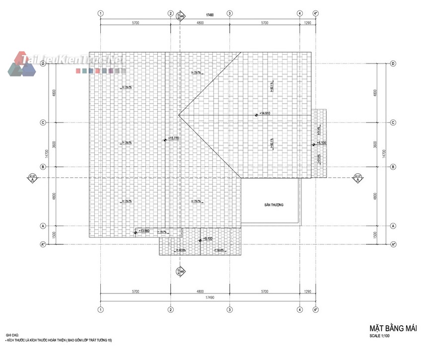
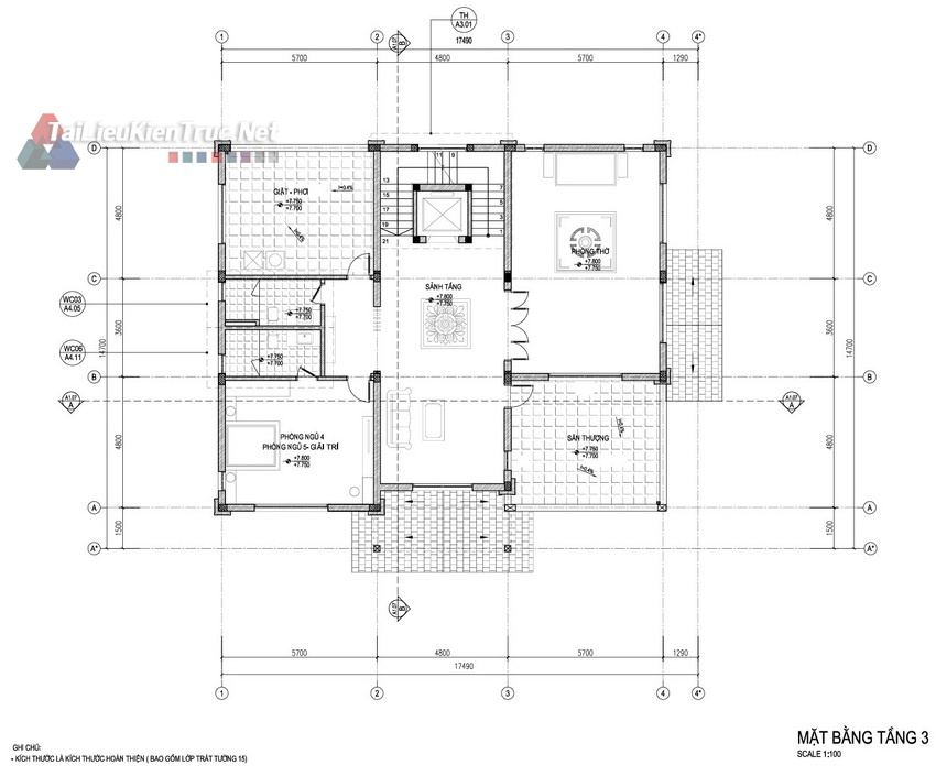
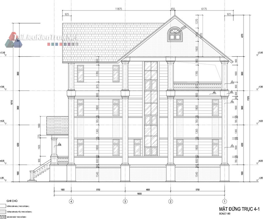
    Bộ hồ sơ này bao gồm đầy đủ các bản vẽ thi công phần kiến trúc:

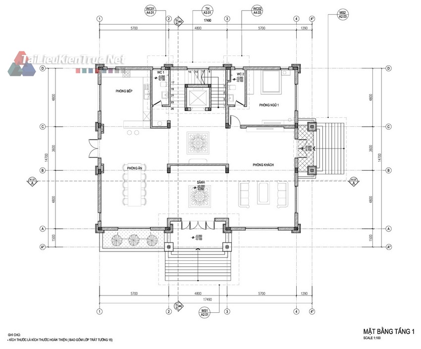
    - Mặt bằng tổng thể, mặt bằng các tầng, mặt đứng, mặt cắt
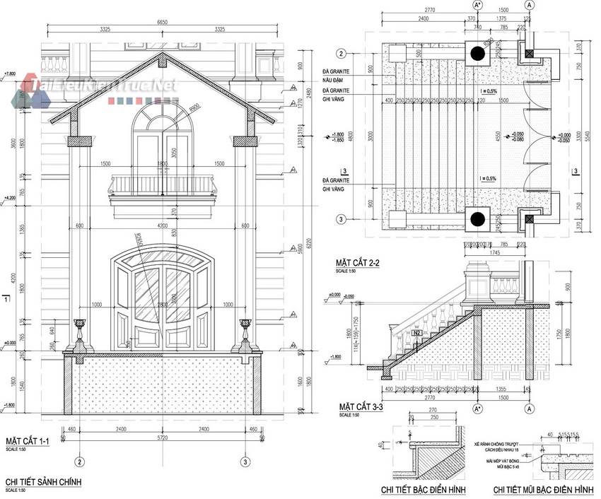
    - Chi tiết mặt đứng; sảnh, tam cấp, cột, phào chỉ, mái
    - Chi tiết vệ sinh
    - Chi tiết thang bộ thang máy
    - Mặt bằng trần đèn
    - Mặt bằng lát sàn
    - Mặt bằng sân vườn, cổng tường rào.

    Chi tiết xem danh mục bản vẽ dưới đây

     

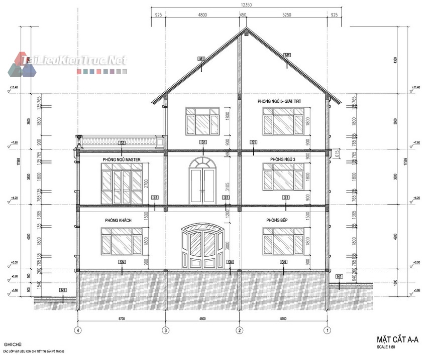
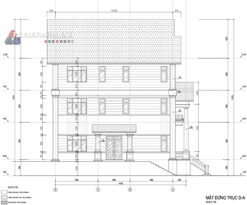
     Mặt bằng, mặt đứng, mặt cắt

     

     

     

     Chi tiết mặt đứng

     

     

     

     Chi tiết vệ sinh

     

     

     

     Cảnh quan sân vườn cổng tường rào

     

     
















    Tài liệu liên quan

    Quảng cáo