Ctrl+D

Đánh dấu để lưu lại

Tất cả

    SEARCH ITEMS

  • Thư viện Autocad
  • Thư viện Sketchup
  • Hồ sơ thiết kế
  • Thư viện 3ds max
  • Thư viện Lumion
  • Thư viện Revit
  • Thư viện Map
  • Thư viện Vật liệu - HDRI
  • Giáo trình học tập
  • Đồ án kiến trúc
  • Thư viện photoshop
  • Sách - Tạp chí kiến trúc
  • Phần mềm và Plugins
  • Phối cảnh 3D nội thất
  • Phối cảnh 3D ngoại thất

40.Chi tiết cửa phào chỉ tân cổ điển miễn phí

Trang chủ  >   Thư viện Autocad >   Thư viện Cad tân cổ điển

  • 40.Chi tiết cửa phào chỉ tân cổ điển miễn phí
    • TLKT
    • 11-10-2025
    • 32
    • 630
    • Chia sẻ bài viết này: 
    •  


    Có thể quan tâm

    Định dạng: rar
    Dung lượng file: 245 KB






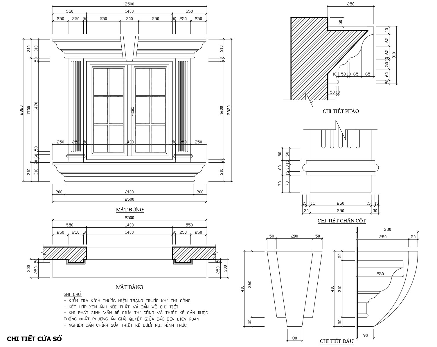
    Chi tiết cửa phào chỉ tân cổ điển miễn phí

    Nội dung bài viết của bạn


    Tài liệu này cung cấp cái nhìn chi tiết về các bản vẽ kiến trúc, giúp các chuyên gia hiểu rõ hơn về thiết kế cấu trúc và kỹ thuật.


    Các hình ảnh trên mô tả các chi tiết cấu trúc của một công trình, bao gồm chi tiết vách cửa khu cầu thang và chi tiết tum nhỏ. Mỗi bản vẽ đều có các thông số kỹ thuật rõ ràng, cho thấy độ chính xác cao trong việc trình bày kích thước và bố trí.


    - Đặc điểm nổi bật:
    - • Chất lượng chuyên nghiệp: Các chi tiết được thể hiện rõ nét và có chú thích đầy đủ.
    - • Dễ dàng sử dụng: Cung cấp thông tin cần thiết một cách dễ hiểu, tạo điều kiện thuận lợi cho quá trình thi công.
    - • Tương thích nhiều phần mềm: Có thể áp dụng dưới nhiều định dạng số hóa khác nhau.
    - • Tiết kiệm thời gian thiết kế: Các bản vẽ chi tiết giúp giảm thiểu sai sót trong quá trình thiết kế và thi công.


    Ứng dụng thực tế của tài liệu này rất đa dạng, từ việc hỗ trợ quá trình thiết kế, giúp các kỹ sư, kiến trúc sư, và thợ xây dựng có được cái nhìn đồng bộ về cấu trúc công trình, cho đến việc làm tài liệu tham khảo trong học tập hoặc giảng dạy.


    Các chi tiết kỹ thuật trong bản vẽ bao gồm kích thước cụ thể của vách cửa, kết cấu tum và các phụ kiện đi kèm. Vật liệu sử dụng thường sẽ được quyết định dựa trên các ghi chú kỹ thuật và yêu cầu của công trình thực tế.


    Giá trị chuyên nghiệp:
    Tài liệu này là nguồn tham khảo quý giá cho các chuyên gia kiến trúc và xây dựng, áp dụng trong các dự án thiết kế, thi công và nghiên cứu học thuật.


    Hãy tải về để ứng dụng vào các dự án của bạn, hy vọng đây là tài liệu hữu ích đối với mọi người.


    Khám phá thêm hàng nghìn mô hình AUTOCAD miễn phí khác!

    Hãy truy cập ngay Thư viện AUTOCAD của chúng tôi để tải về những tài nguyên tuyệt vời, giúp nâng cao chất lượng và hiệu quả công việc của bạn!

    <<<<< >>>>>

    THƯ VIỆN AUTOCAD


    Tài liệu liên quan

    Quảng cáo