Định dạng: rar
Dung lượng file: 196 KB

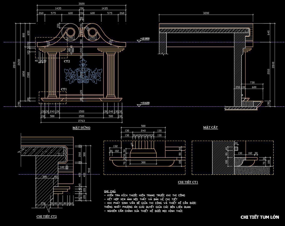
Tài liệu này cung cấp cái nhìn chi tiết về bản thiết kế chi tiết tum lớn trong kiến trúc hiện đại. Đây là một bản vẽ thiết kế thể hiện cấu trúc và chi tiết xây dựng giúp các kiến trúc sư và kỹ sư áp dụng trong thực tiễn.
Nội dung chính của bản vẽ cung cấp cái nhìn sâu sắc vào các chi tiết cấu tạo của phần tum lớn. Bản vẽ được chia thành nhiều phần khác nhau, bao gồm các mặt đứng, mặt cắt và chi tiết cụ thể, giúp bạn hiểu rõ hơn về kích thước, tỷ lệ và vị trí các yếu tố kiến trúc.
Đặc điểm nổi bật:
• Chất lượng chuyên nghiệp: Bản vẽ được thiết kế với sự chính xác cao, đáp ứng tiêu chuẩn ngành.
• Dễ dàng sử dụng: Các thông số kỹ thuật rõ ràng, trực quan, dễ dàng cho việc tham khảo và ứng dụng.
• Tương thích nhiều phần mềm: Định dạng chuẩn, có thể mở và chỉnh sửa trên nhiều phần mềm thiết kế khác nhau.
• Tiết kiệm thời gian thiết kế: Cung cấp các chi tiết và giải pháp kiến trúc sẵn có, giảm thời gian nghiên cứu cho các dự án mới.
Bản vẽ này đặc biệt hữu ích trong các ứng dụng thiết thực như thiết kế và thi công các công trình xây dựng. Với các kích thước chi tiết và tỷ lệ cân đối, sản phẩm này đảm bảo tính khả thi và hiệu quả thực tiễn. Các ghi chú đi kèm giúp nhấn mạnh các bước cần chú ý trong giai đoạn thi công, từ đó giảm thiểu sai sót và rủi ro trong quá trình thực hiện.
Giá trị chuyên nghiệp:
Đối tượng sử dụng bản vẽ này là các chuyên gia trong lĩnh vực kiến trúc và xây dựng. Bản thiết kế có thể được ứng dụng trong các hoạt động thiết kế, thi công, học tập hay tham khảo để nâng cao kỹ năng và hiểu biết chuyên môn.
Hãy tải về để ứng dụng vào các dự án của bạn, hy vọng đây là tài liệu hữu ích đối với mọi người.
Khám phá thêm hàng nghìn mô hình AUTOCAD miễn phí khác!
Hãy truy cập ngay Thư viện AUTOCAD của chúng tôi để tải về những tài nguyên tuyệt vời, giúp nâng cao chất lượng và hiệu quả công việc của bạn!
<<<<< >>>>>