Định dạng: dwg
Dung lượng file: 199 KB



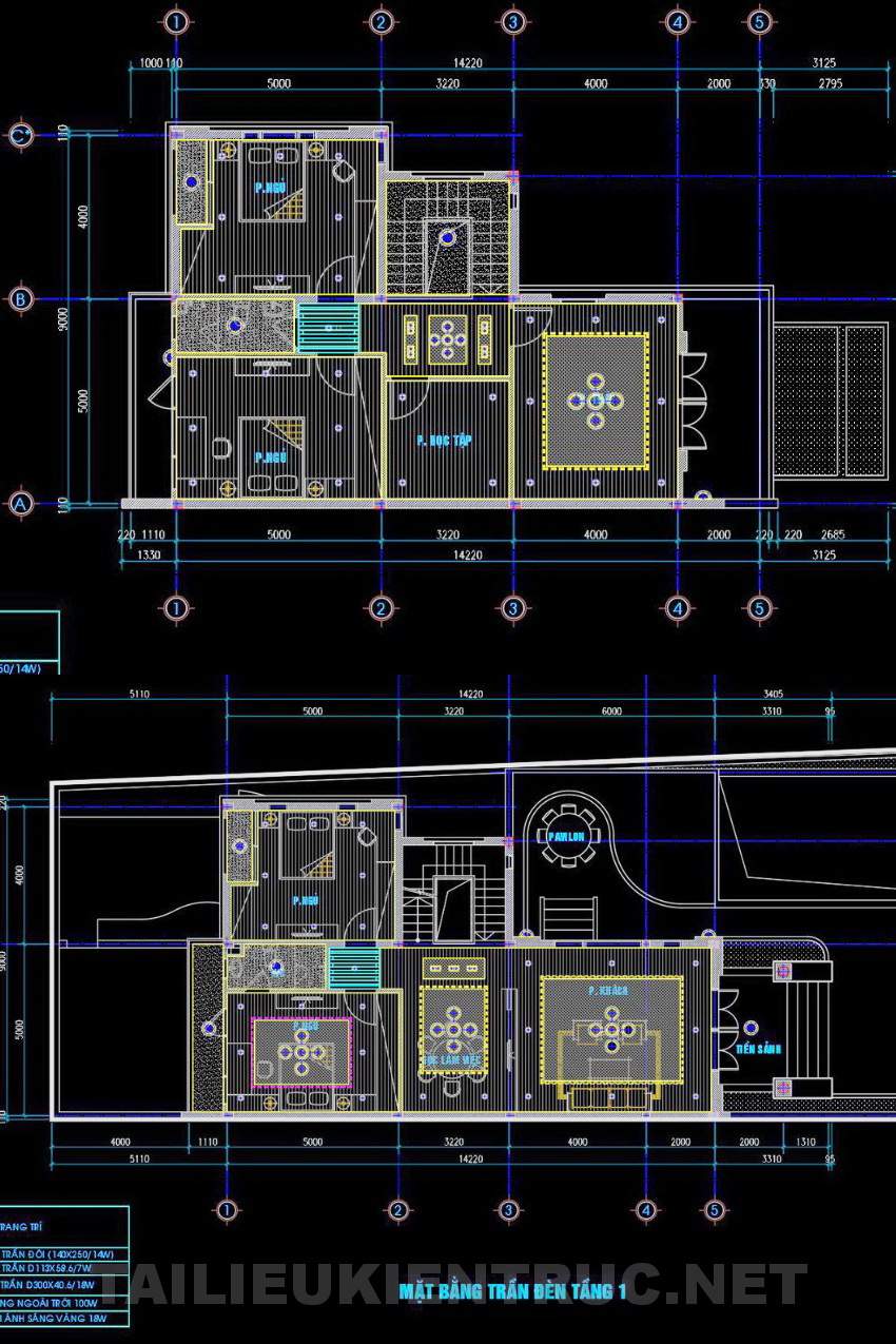
Tài liệu này cung cấp một cái nhìn chi tiết và toàn diện về cách bố trí mặt bằng trần và đèn của một ngôi nhà hiện đại, đáp ứng các nhu cầu sử dụng đa dạng trong kiến trúc và xây dựng.
Hình ảnh mô tả các bản vẽ mặt bằng trần cho ba tầng của một công trình xây dựng. Các sơ đồ này được thể hiện với chi tiết kỹ thuật rõ ràng và dễ hiểu, phù hợp cho việc tham khảo và áp dụng trong thực tế.
- Mô tả chi tiết:
- Tầng hầm: Được thiết kế với các khu vực chức năng rõ ràng như phòng máy bơm, bếp, và phòng khách. Sử dụng đèn LED âm trần và đèn ốp tường với nhiều dải công suất khác nhau để tạo ánh sáng hài hòa.
- Tầng trệt: Chứa các phòng chức năng như phòng ngủ, phòng học tập. Chi tiết về trần thạch cao và loại đèn sử dụng được chỉ định rõ ràng.
- Tầng lầu: Bố trí với không gian làm việc và nghỉ ngơi, cùng khu vực đa chức năng.
- Đặc điểm nổi bật:
- Chất lượng chuyên nghiệp
- Dễ dàng sử dụng
- Tương thích nhiều phần mềm
- Tiết kiệm thời gian thiết kế
- Ứng dụng thực tế và lợi ích:
- Cải thiện hiệu quả thiết kế và thi công nhờ sự bố trí khoa học.
- Giảm thiểu lỗi sai trong quá trình chuẩn bị và lắp đặt nhờ vào chi tiết kỹ thuật rõ ràng.
- Tiết kiệm thời gian thiết kế cho các kiến trúc sư và kỹ sư nhờ vào cấu trúc bố trí đã được định sẵn.
- Chi tiết kỹ thuật:
- Các sơ đồ có tỷ lệ 1m:100, giúp dễ dàng hình dung về kích thước thực tế.
- Sử dụng kỹ thuật chiếu sáng hiện đại như đèn chùm trang trí, đèn LED với nhiều công suất khác nhau (18W, 70W, 100W) để tạo ra không gian sống thoải mái và tiết kiệm năng lượng.
Bộ tài liệu này là nguồn tư liệu quý giá cho các chuyên gia trong kiến trúc và xây dựng. Nó giúp cải thiện quá trình thiết kế, thi công và có thể sử dụng làm tài liệu học tập hay tham khảo.
Hãy tải về để ứng dụng vào các dự án của bạn, hy vọng đây là tài liệu hữu ích đối với mọi người.
Khám phá thêm hàng nghìn mô hình AUTOCAD miễn phí khác!
Hãy truy cập ngay Thư viện AUTOCAD của chúng tôi để tải về những tài nguyên tuyệt vời, giúp nâng cao chất lượng và hiệu quả công việc của bạn!
<<<<< >>>>>